Відгуки про АН Город:

Відгуки про АН Город Дивитися всі Додати відгук

Відео відгуки про нас:

Відео відгуки про нас Дивитися всі
Заявка на продаж або оренду нерухомості Написати листа Замовити дзвінок

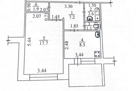
Продам 1-кімнатну квартиру, Журавлевка, Код: 815514/1

Розташування: Харьков, Журавлевка, Шевченко ул. (Журавлевка) Дивитися на мапі

8

23.04.26

Заявка на перегляд Замовити дзвінок Запропонувати свою ціну Поскаржитися

Контактні дані

0

(099) ххх-хх-хх

Показати

Номер об'єкта: 815514/1

22 000 $

ГРН USD

Ціна 537 $ / м2

Кількість кімнат: 1

Поверх/поверховість: 2/12

S загаль/житл/кух: 41/-/-

Розташування: Харьков, Журавлевка, Шевченко ул. (Журавлевка)

Опис:

Продаю 1-кімнатну квартиру покращеного планування на вул. Шевченка. Новий технічний паспорт. Квартира в житловому стані, але за потреби потребує ремонту у ванній/туалеті та на кухні. Квартира розташована в середині будинку, тепла, з гарним великим тамбуром. Вікна металопластикові, двері замінені. Площа — 42 кв. м. 2/12 поверх. У будинку 2 ліфти, під'їзд сухий. Гаряча вода централізована, поруч річка, магазини, невеликий ринок, аптека, зупинка автобуса, трамвая. До Героїв Праці 5 хв. на машині, 10 хв. на транспорті. Торг є.

Заявка на перегляд Замовити дзвінок Запропонувати свою ціну Поскаржитися

Контактні дані

0

(099) ххх-хх-хх

Показати

Подібні пропозиції:

22 000 $

15.04.23

384

Кількість кімнат: 1

Поверх/поверховість: 1/9

S загаль/житл/кух: 42/-/-

Розташування: Харьков, Журавлевка, Вологодская ул., Киевская метро

Детальніше...

22 000 $

01.06.23

354

Кількість кімнат: 1

Поверх/поверховість: 5/5

S загаль/житл/кух: 33/18/7

Розташування: Харьков, Журавлевка, Александровский пер.

Детальніше...

22 000 $

10.08.23

367

Кількість кімнат: 1

Поверх/поверховість: 6/12

S загаль/житл/кух: 38/-/-

Розташування: Харьков, Журавлевка, Шевченко ул. (Журавлевка)

Детальніше...

21 000 $

01.09.23

329

Кількість кімнат: 1

Поверх/поверховість: 8/

S загаль/житл/кух: 42/-/-

Розташування: Харьков, Журавлевка, Шевченко ул. (Журавлевка)

Детальніше...

19 000 $

05.09.23

353

Кількість кімнат: 1

Поверх/поверховість: 5/9

S загаль/житл/кух: 32/17/7

Розташування: Харьков, Журавлевка, Шевченко ул. (Журавлевка)

Детальніше...

22 000 $

14.09.23

368

Кількість кімнат: 1

Поверх/поверховість: 1/9

S загаль/житл/кух: 27/-/-

Розташування: Харьков, Журавлевка, Вологодская ул.

Детальніше...

23 000 $

03.10.23

338

Кількість кімнат: 1

Поверх/поверховість: 3/9

S загаль/житл/кух: 37/-/-

Розташування: Харьков, Журавлевка, Шевченко ул. (Журавлевка)

Детальніше...

19 000 $

23.01.24

325

Кількість кімнат: 1

Поверх/поверховість: 4/5

S загаль/житл/кух: 33/17/7

Розташування: Харьков, Журавлевка, Александровский пер.

Детальніше...

20 000 $

26.02.24

325

Кількість кімнат: 1

Поверх/поверховість: 8/9

S загаль/житл/кух: 36/-/-

Розташування: Харьков, Журавлевка, Шевченко ул. (Журавлевка)

Детальніше...

25 000 $

29.11.24

273

Кількість кімнат: 1

Поверх/поверховість: 1/10

S загаль/житл/кух: 40/-/-

Розташування: Харьков, Журавлевка, Киевская метро

Детальніше...

21 500 $

27.05.25

77

Кількість кімнат: 1

Поверх/поверховість: 3/9

S загаль/житл/кух:

Розташування: Харьков, Журавлевка, Вологодская ул., Киевская метро

Детальніше...