Відгуки про АН Город:

Відгуки про АН Город Дивитися всі Додати відгук

Відео відгуки про нас:

Відео відгуки про нас Дивитися всі
Заявка на продаж або оренду нерухомості Написати листа Замовити дзвінок

Продам 3-х кімнатну квартиру в новобудові, Павлово поле, Код: 805530/1

Розташування: Харьков, Павлово поле, Профессорская Дивитися на мапі

358

16.01.24

Заявка на перегляд Замовити дзвінок Запропонувати свою ціну Поскаржитися

Контактні дані

1

Маргарита Юрьевна

(099) ххх-хх-хх

Показати

Номер об'єкта: 805530/1

49 800 $

ГРН USD

Ціна 711 $ / м2

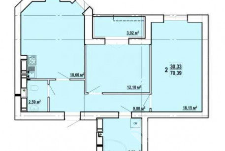
Кількість кімнат: 3

Поверх/поверховість: 9/16

S загаль/житл/кух: 70/-/-

Розташування: Харьков, Павлово поле, Профессорская

Опис:

Продам 3-комнатную квартиру в ЖК Сокільники, площадью 70 кв.м. з кладовкою 10 кв.м. та готовим дизайн проєктом. Велика кухня -вітальня, дві окремы спальні, два санвузла. 9/16 поверх. В комплекті з коморою 10кв.м, в коморі є вікно, 12 поверх. Також в комплекті є готовий дизайн проєкт з візуалізацією. Квартира вже без стін, тож можна зробити вільне планування. Цегла з розібраних стін збережена для подальшого використання. Вікна виходять на Тетру та Центральний парк. Дім з цегли, вже заселений.

Заявка на перегляд Замовити дзвінок Запропонувати свою ціну Поскаржитися

Контактні дані

1

Маргарита Юрьевна

(099) ххх-хх-хх

Показати

Подібні пропозиції:

50 000 $

10.02.23

606

Кількість кімнат: 3

Поверх/поверховість: 4/5

S загаль/житл/кух: 80/-/-

Розташування: Харьков, Холодная Гора, Титаренковский пер.

Детальніше...

50 000 $

28.04.23

583

Кількість кімнат: 3

Поверх/поверховість: 4/9

S загаль/житл/кух: 67/-/-

Розташування: Харьков, Гагарина проспект, Елизаветинская, Проспект Гагарина метро

Детальніше...

52 000 $

23.05.23

515

Кількість кімнат: 3

Поверх/поверховість: 4/4

S загаль/житл/кух: 84/58/13

Розташування: Харьков, Журавлевка, Новоалександровская

Детальніше...

49 900 $

09.06.23

515

Кількість кімнат: 3

Поверх/поверховість: 16/16

S загаль/житл/кух: 71/-/-

Розташування: Харьков, Гагарина проспект, Елизаветинская

Детальніше...

50 000 $

13.06.23

540

Кількість кімнат: 3

Поверх/поверховість: 2/9

S загаль/житл/кух: 82/-/-

Розташування: Харьков, Гагарина проспект, Героев Харькова пр. (Гагарина)

Детальніше...

52 000 $

19.08.23

496

Кількість кімнат: 3

Поверх/поверховість: 2/9

S загаль/житл/кух: 82/-/-

Розташування: Харьков, ХТЗ, Героев Харькова пр. (ХТЗ), Масельского метро

Детальніше...

48 000 $

29.08.23

520

Кількість кімнат: 3

Поверх/поверховість: 3/4

S загаль/житл/кух: 78/-/-

Розташування: Харьков, Одесская, Одесская ул.

Детальніше...

47 500 $

30.10.23

496

Кількість кімнат: 3

Поверх/поверховість: 8/9

S загаль/житл/кух: 81/-/-

Розташування: Харьков, ХТЗ, Мира ул., ХТЗ метро

Детальніше...

49 990 $

26.09.24

399

Кількість кімнат: 3

Поверх/поверховість: 2/9

S загаль/житл/кух: 82/-/-

Розташування: Харьков, Гагарина проспект, Героев Харькова пр. (Гагарина)

Детальніше...

49 000 $

21.10.24

510

Кількість кімнат: 3

Поверх/поверховість: 12/16

S загаль/житл/кух: 99/-/-

Розташування: Харьков, Павлово поле, Профессорская, Сокольники

Детальніше...

48 000 $

26.02.24

357

Кількість кімнат: 3

Поверх/поверховість: 4/9

S загаль/житл/кух: 81/-/-

Розташування: Харьков, ХТЗ, Мира ул., ХТЗ метро

Детальніше...

50 000 $

20.03.24

305

Кількість кімнат: 3

Поверх/поверховість: 9/16

S загаль/житл/кух: 85/48/11

Розташування: Харьков, Павлово поле, Профессорская, Сокольники

Детальніше...