Відгуки про АН Город:

Відгуки про АН Город Дивитися всі Додати відгук

Відео відгуки про нас:

Відео відгуки про нас Дивитися всі
Заявка на продаж або оренду нерухомості Написати листа Замовити дзвінок

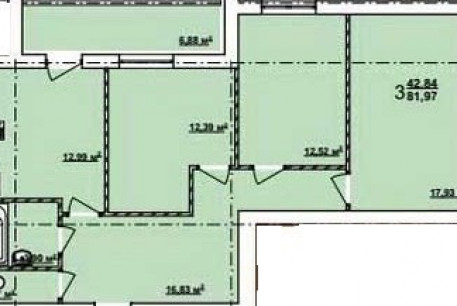
Продам 3-х кімнатну квартиру в новобудові, Гагарина проспект, Код: 800614/2

Розташування: Харьков, Гагарина проспект, Героев Харькова пр. (Гагарина) Дивитися на мапі

544

13.06.23

Заявка на перегляд Замовити дзвінок Запропонувати свою ціну Поскаржитися

Контактні дані

0

(099) ххх-хх-хх

Показати

Номер об'єкта: 800614/2

50 000 $

ГРН USD

Ціна 610 $ / м2

Кількість кімнат: 3

Поверх/поверховість: 2/9

S загаль/житл/кух: 82/-/-

Розташування: Харьков, Гагарина проспект, Героев Харькова пр. (Гагарина)

Опис:

Продається 3-кімнатна квартира в житловому комплексі "Миру 2" на проспекті Героїв у Харкові. Площа квартири становить 81,97 квадратних метрів. Розташована на 2 поверсі з 9.

Заявка на перегляд Замовити дзвінок Запропонувати свою ціну Поскаржитися

Контактні дані

0

(099) ххх-хх-хх

Показати

Подібні пропозиції:

50 000 $

28.04.23

585

Кількість кімнат: 3

Поверх/поверховість: 4/9

S загаль/житл/кух: 67/-/-

Розташування: Харьков, Гагарина проспект, Елизаветинская, Проспект Гагарина метро

Детальніше...

49 900 $

09.06.23

518

Кількість кімнат: 3

Поверх/поверховість: 16/16

S загаль/житл/кух: 71/-/-

Розташування: Харьков, Гагарина проспект, Елизаветинская

Детальніше...

49 990 $

26.09.24

402

Кількість кімнат: 3

Поверх/поверховість: 2/9

S загаль/житл/кух: 82/-/-

Розташування: Харьков, Гагарина проспект, Героев Харькова пр. (Гагарина)

Детальніше...

47 000 $

05.09.24

360

Кількість кімнат: 3

Поверх/поверховість: 11/16

S загаль/житл/кух: 78/-/-

Розташування: Харьков, Гагарина проспект, Заливная ул., Проспект Гагарина метро

Детальніше...