Відгуки про АН Город:

Відгуки про АН Город Дивитися всі Додати відгук

Відео відгуки про нас:

Відео відгуки про нас Дивитися всі
Заявка на продаж або оренду нерухомості Написати листа Замовити дзвінок

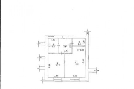
Продам 1-кімнатну квартиру в новобудові, Новые дома, Маршала Жукова метро (Дворец спорта), Код: 803016/1

Розташування: Харьков, Новые дома, Байрона просп. (Новые дома), Маршала Жукова метро (Дворец спорта) Дивитися на мапі

502

24.09.23

Заявка на перегляд Замовити дзвінок Запропонувати свою ціну Поскаржитися

Контактні дані

0

Руслан Станиславович

(066) ххх-хх-хх

Показати

Номер об'єкта: 803016/1

40 000 $

ГРН USD

Ціна 1 081 $ / м2

Кількість кімнат: 1

Поверх/поверховість: 1/9

S загаль/житл/кух: 37/22/9

Розташування: Харьков, Новые дома, Байрона просп. (Новые дома), Маршала Жукова метро (Дворец спорта)

Опис:

У продажу 1-кімнатна квартира в ЖК Маршал. Квартира, площею 37 кв.метрів в 1 хвилині пішки від метро. Перший поверх (ідеально підходить під бізнес). Вікна виходять на парковку. Без балкона.

Заявка на перегляд Замовити дзвінок Запропонувати свою ціну Поскаржитися

Контактні дані

0

Руслан Станиславович

(066) ххх-хх-хх

Показати

Подібні пропозиції:

39 000 $

21.03.23

551

Кількість кімнат: 1

Поверх/поверховість: 5/9

S загаль/житл/кух: 37/22/10

Розташування: Харьков, Новые дома, Льва Ландау просп. (Новые дома), Маршала Жукова метро (Дворец спорта)

Детальніше...

40 000 $

19.04.23

544

Кількість кімнат: 1

Поверх/поверховість: 11/14

S загаль/житл/кух: 42/-/-

Розташування: Харьков, Новые дома, Маршала Жукова метро (Дворец спорта)

Детальніше...

43 000 $

26.07.23

501

Кількість кімнат: 1

Поверх/поверховість: 11/13

S загаль/житл/кух: 50/-/-

Розташування: Харьков, Новые дома, Маршала Жукова метро (Дворец спорта)

Детальніше...

42 000 $

16.01.24

377

Кількість кімнат: 1

Поверх/поверховість: 10/10

S загаль/житл/кух: 43/22/10

Розташування: Харьков, Новые дома, Маршала Жукова метро (Дворец спорта)

Детальніше...

42 000 $

29.01.24

369

Кількість кімнат: 1

Поверх/поверховість: 3/10

S загаль/житл/кух: 38/22/12

Розташування: Харьков, Новые дома, Героев Харькова пр. (Новые дома), Маршала Жукова метро (Дворец спорта)

Детальніше...

37 000 $

27.02.24

339

Кількість кімнат: 1

Поверх/поверховість: 10/10

S загаль/житл/кух: 43/22/10

Розташування: Харьков, Новые дома, Героев Харькова пр. (Новые дома), Маршала Жукова метро (Дворец спорта)

Детальніше...

40 300 $

29.04.24

295

Кількість кімнат: 1

Поверх/поверховість: 6/9

S загаль/житл/кух: 41/18/10

Розташування: Харьков, Новые дома, Льва Ландау просп. (Новые дома), Маршала Жукова метро (Дворец спорта)

Детальніше...

41 500 $

10.06.24

356

Кількість кімнат: 1

Поверх/поверховість: 1/14

S загаль/житл/кух: 42/-/-

Розташування: Харьков, Новые дома, Героев Харькова пр. (Новые дома), Маршала Жукова метро (Дворец спорта)

Детальніше...

37 000 $

11.06.24

319

Кількість кімнат: 1

Поверх/поверховість: 9/9

S загаль/житл/кух: 41/22/10

Розташування: Харьков, Новые дома, Льва Ландау просп. (Новые дома), Маршала Жукова метро (Дворец спорта)

Детальніше...

41 000 $

08.07.24

360

Кількість кімнат: 1

Поверх/поверховість: 3/9

S загаль/житл/кух: 39/-/-

Розташування: Харьков, Новые дома, Льва Ландау просп. (Новые дома), Маршала Жукова метро (Дворец спорта)

Детальніше...

40 000 $

28.01.25

299

Кількість кімнат: 1

Поверх/поверховість: 7/10

S загаль/житл/кух: 41/-/-

Розташування: Харьков, Новые дома, Героев Харькова пр. (Новые дома), Маршала Жукова метро (Дворец спорта)

Детальніше...

39 581 $

24.03.25

218

Кількість кімнат: 1

Поверх/поверховість: 1/13

S загаль/житл/кух: 42/-/-

Розташування: Харьков, Новые дома, Садовый проезд, Маршала Жукова метро (Дворец спорта)

Детальніше...