Відгуки про АН Город:

Відгуки про АН Город Дивитися всі Додати відгук

Відео відгуки про нас:

Відео відгуки про нас Дивитися всі
Заявка на продаж або оренду нерухомості Написати листа Замовити дзвінок

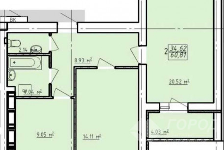
Продам 2-х кімнатну квартиру в новобудові, Гагарина проспект, Проспект Гагарина метро, Код: 802330/1

Розташування: Харьков, Гагарина проспект, Елизаветинская, Проспект Гагарина метро Дивитися на мапі

368

08.01.25

Заявка на перегляд Замовити дзвінок Запропонувати свою ціну Поскаржитися

Контактні дані

0

Аарон Александрович

(099) ххх-хх-хх

(096) ххх-хх-хх

(097) ххх-хх-хх

Показати

Номер об'єкта: 802330/1

48 000 $

ГРН USD

Ціна 800 $ / м2

Кількість кімнат: 2

Поверх/поверховість: 7/16

S загаль/житл/кух: 60/-/-

Розташування: Харьков, Гагарина проспект, Елизаветинская, Проспект Гагарина метро

Опис:

Продам 2-кімнатну квартиру, загальною площею 60.3 м2. в ЖК Левада. Будинок зданий, присвоєно адресу, йдуть активно ремонти.7/16 поверх. Зроблено перепланування в 3-х кімнатну. Кухня-студія - 18.6 м2, кімната 1 - 10,9 м2, кімната 2 - 20 м2, балкон - 4,5 м2, санвузол - 4,8 м2. У квартирі об'єднаний санвузол. Засклений балкон якісним і теплим металопластиковим вікном з енергозберігаючим двокамерним склопакетом Rehau SYNEGO-80 MD. Балкон якісно утеплений забудовником мінватою 100 мм і пофарбований у колір фасаду. Квартира дуже тепла. Додатково поруч з квартирою є комора площею 3.3 м2 Встановлено тепловий лічильник на опалення Проведено інтернет від тріолан Частково зроблена електрика. Сміття вивезено.

Заявка на перегляд Замовити дзвінок Запропонувати свою ціну Поскаржитися

Контактні дані

0

Аарон Александрович

(099) ххх-хх-хх

(096) ххх-хх-хх

(097) ххх-хх-хх

Показати

Подібні пропозиції:

45 000 $

25.01.23

773

Кількість кімнат: 2

Поверх/поверховість: 9/9

S загаль/житл/кух: 45/-/20

Розташування: Харьков, Гагарина проспект, Елизаветинская, Проспект Гагарина метро

Детальніше...

49 000 $

25.02.23

451

Кількість кімнат: 2

Поверх/поверховість: 8/16

S загаль/житл/кух: 55/-/-

Розташування: Харьков, Гагарина проспект, Елизаветинская, Проспект Гагарина метро

Детальніше...

50 000 $

16.03.23

480

Кількість кімнат: 2

Поверх/поверховість: 8/16

S загаль/житл/кух: 63/-/-

Розташування: Харьков, Гагарина проспект, Елизаветинская, Проспект Гагарина метро

Детальніше...

48 000 $

21.03.23

403

Кількість кімнат: 2

Поверх/поверховість: 2/16

S загаль/житл/кух: 60/-/-

Розташування: Харьков, Гагарина проспект, Елизаветинская, Проспект Гагарина метро

Детальніше...

49 300 $

24.03.23

470

Кількість кімнат: 2

Поверх/поверховість: 9/16

S загаль/житл/кух: 52/26/12

Розташування: Харьков, Гагарина проспект, Молочная ул., Проспект Гагарина метро

Детальніше...

50 000 $

11.04.23

390

Кількість кімнат: 2

Поверх/поверховість: 5/16

S загаль/житл/кух: 50/-/-

Розташування: Харьков, Гагарина проспект, Елизаветинская, Проспект Гагарина метро

Детальніше...

45 500 $

09.06.24

336

Кількість кімнат: 2

Поверх/поверховість: 5/16

S загаль/житл/кух: 52/-/-

Розташування: Харьков, Гагарина проспект, Молочная ул., Проспект Гагарина метро

Детальніше...

50 500 $

25.11.23

339

Кількість кімнат: 2

Поверх/поверховість: 10/12

S загаль/житл/кух: 52/36/11

Розташування: Харьков, Гагарина проспект, Гагарина пр. (Гагарина Проспект), Проспект Гагарина метро

Детальніше...

47 300 $

30.10.23

396

Кількість кімнат: 2

Поверх/поверховість: 4/16

S загаль/житл/кух: 56/-/-

Розташування: Харьков, Гагарина проспект, Заливная ул., Проспект Гагарина метро

Детальніше...

48 000 $

24.01.24

322

Кількість кімнат: 2

Поверх/поверховість: 6/16

S загаль/житл/кух: 58/-/-

Розташування: Харьков, Гагарина проспект, Елизаветинская, Проспект Гагарина метро

Детальніше...

47 000 $

25.01.24

290

Кількість кімнат: 2

Поверх/поверховість: 9/9

S загаль/житл/кух: 39/-/-

Розташування: Харьков, Гагарина проспект, Елизаветинская, Проспект Гагарина метро

Детальніше...

45 000 $

06.03.24

289

Кількість кімнат: 2

Поверх/поверховість: 5/16

S загаль/житл/кух: 60/-/-

Розташування: Харьков, Гагарина проспект, Заливная ул., Проспект Гагарина метро

Детальніше...