Відгуки про АН Город:

Відгуки про АН Город Дивитися всі Додати відгук

Відео відгуки про нас:

Відео відгуки про нас Дивитися всі
Заявка на продаж або оренду нерухомості Написати листа Замовити дзвінок

Продам 3-х кімнатну квартиру в новобудові, Гагарина проспект, Защитников Украины метро (Площадь Восстания), Код: 792163/1

Розташування: Харьков, Гагарина проспект, Героев Харькова пр. (Гагарина), Защитников Украины метро (Площадь Восстания) Дивитися на мапі

490

19.12.23

Заявка на перегляд Замовити дзвінок Запропонувати свою ціну Поскаржитися

Контактні дані

0

(099) ххх-хх-хх

Показати

Номер об'єкта: 792163/1

85 000 $

ГРН USD

Ціна 697 $ / м2

Кількість кімнат: 3

Поверх/поверховість: 9/9

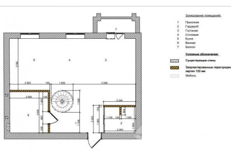
S загаль/житл/кух: 122/-/-

Розташування: Харьков, Гагарина проспект, Героев Харькова пр. (Гагарина), Защитников Украины метро (Площадь Восстания)

Опис:

Продається 2-поверхова квартира в новобудові на просп. Московському. Будинок цегляний від забудовника Житлобуд 1. Квартира підготовлена під чистове оздоблення. Метро, кінний ринок, трамвай у 5-ти хвилинах ходьби. На першому поверсі тепла підлога. Є готовий дизайн проєкт. За проєктом і фактичне планування: 2 санвузли, 2 гардеробні, зал-студія, спальна кімната і дитяча.

Заявка на перегляд Замовити дзвінок Запропонувати свою ціну Поскаржитися

Контактні дані

0

(099) ххх-хх-хх

Показати

Подібні пропозиції:

85 000 $

19.04.23

675

Кількість кімнат: 3

Поверх/поверховість: 5/16

S загаль/житл/кух: 93/56/15

Розташування: Харьков, Гагарина проспект, Молочная ул., Проспект Гагарина метро

Детальніше...

88 000 $

10.03.23

587

Кількість кімнат: 3

Поверх/поверховість: 5/12

S загаль/житл/кух: 44/18/15

Розташування: Харьков, Гагарина проспект, Гагарина пр. (Гагарина Проспект)

Детальніше...

82 500 $

03.10.23

443

Кількість кімнат: 3

Поверх/поверховість: 7/9

S загаль/житл/кух: 101/-/15

Розташування: Харьков, Гагарина проспект, Героев Харькова пр. (Гагарина), Защитников Украины метро (Площадь Восстания)

Детальніше...

85 000 $

27.03.24

367

Кількість кімнат: 3

Поверх/поверховість: 11/16

S загаль/житл/кух: 95/-/-

Розташування: Харьков, Гагарина проспект, Молочная ул., Спортивная метро

Детальніше...

85 000 $

22.04.24

323

Кількість кімнат: 3

Поверх/поверховість: 3/16

S загаль/житл/кух: 85/-/-

Розташування: Харьков, Гагарина проспект, Молочная ул., Проспект Гагарина метро

Детальніше...