Відгуки про АН Город:

Відгуки про АН Город Дивитися всі Додати відгук

Відео відгуки про нас:

Відео відгуки про нас Дивитися всі
Заявка на продаж або оренду нерухомості Написати листа Замовити дзвінок

Продам 1-кімнатну квартиру в новобудові, Салтовка, Академика Павлова метро, Код: 765031/3

Розташування: Харьков, Салтовка, Барабашова ул., Академика Павлова метро Дивитися на мапі

15

15.04.26

Заявка на перегляд Замовити дзвінок Запропонувати свою ціну Поскаржитися

Контактні дані

0

(099) ххх-хх-хх

Показати

Номер об'єкта: 765031/3

18 000 $

ГРН USD

Ціна 429 $ / м2

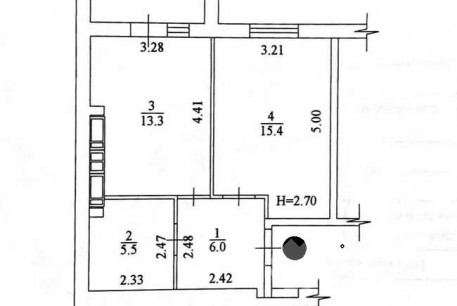
Кількість кімнат: 1

Поверх/поверховість: 3/9

S загаль/житл/кух: 42/-/-

Розташування: Харьков, Салтовка, Барабашова ул., Академика Павлова метро

Опис:

Продам 1-кімнатну квартиру у зданому будинку ЖК "Пташка". Комфортний 3 поверх 9-поверхового будинку, вул.Барабашова. Загальна площа 42,2м2, кухня 13,3 м2, будівельний стан. У квартирі встановлені металопластикові вікна, залізні двері, міжкімнатні перегородки, горизонтальне розведення системи опалення, радіатори тепла, введення електрики та води. Будинок цегляний із зовнішнім утепленням фасаду.

Заявка на перегляд Замовити дзвінок Запропонувати свою ціну Поскаржитися

Контактні дані

0

(099) ххх-хх-хх

Показати

Подібні пропозиції:

15 900 $

17.02.25

983

Кількість кімнат: 1

Поверх/поверховість: 3/9

S загаль/житл/кух: 40/17/10

Розташування: Харьков, Салтовка, Шевченковский пер., Академика Павлова метро

Детальніше...

19 500 $

23.01.23

750

Кількість кімнат: 1

Поверх/поверховість: 4/9

S загаль/житл/кух: 21/15/5

Розташування: Харьков, Салтовка, Шевченковский пер., Академика Павлова метро

Детальніше...

19 000 $

22.10.24

630

Кількість кімнат: 1

Поверх/поверховість: 9/9

S загаль/житл/кух: 49/29/7

Розташування: Харьков, Салтовка, Шевченковский пер., Академика Павлова метро

Детальніше...

18 500 $

25.01.23

641

Кількість кімнат: 1

Поверх/поверховість: 2/9

S загаль/житл/кух: 41/22/6

Розташування: Харьков, Салтовка, Шевченковский пер., Академика Павлова метро

Детальніше...

16 500 $

24.02.23

636

Кількість кімнат: 1

Поверх/поверховість: 2/2

S загаль/житл/кух: 20/-/-

Розташування: Харьков, Салтовка, Шевченковский пер., Академика Павлова метро

Детальніше...

15 000 $

19.04.23

619

Кількість кімнат: 1

Поверх/поверховість: 6/12

S загаль/житл/кух: 22/13/3

Розташування: Харьков, Салтовка, Шевченковский пер., Академика Павлова метро

Детальніше...

15 300 $

07.04.23

570

Кількість кімнат: 1

Поверх/поверховість: 6/12

S загаль/житл/кух: 21/-/-

Розташування: Харьков, Салтовка, Академика Павлова метро

Детальніше...

17 000 $

10.04.23

558

Кількість кімнат: 1

Поверх/поверховість: 7/9

S загаль/житл/кух: 36/-/-

Розташування: Харьков, Салтовка, Барабашова ул., Академика Павлова метро

Детальніше...

15 000 $

12.04.23

578

Кількість кімнат: 1

Поверх/поверховість: 9/9

S загаль/житл/кух: 35/-/-

Розташування: Харьков, Салтовка, Академика Павлова метро

Детальніше...

15 200 $

19.06.23

545

Кількість кімнат: 1

Поверх/поверховість: 3/5

S загаль/житл/кух: 17/-/-

Розташування: Харьков, Салтовка, Академика Павлова метро

Детальніше...

19 500 $

07.11.23

512

Кількість кімнат: 1

Поверх/поверховість: 1/9

S загаль/житл/кух: 37/-/-

Розташування: Харьков, Салтовка, Шевченковский пер., Академика Павлова метро

Детальніше...

21 000 $

17.07.23

551

Кількість кімнат: 1

Поверх/поверховість: 6/9

S загаль/житл/кух: 35/17/9

Розташування: Харьков, Салтовка, Шевченковский пер., Академика Павлова метро

Детальніше...