Відгуки про АН Город:

Відгуки про АН Город Дивитися всі Додати відгук

Відео відгуки про нас:

Відео відгуки про нас Дивитися всі
Заявка на продаж або оренду нерухомості Написати листа Замовити дзвінок

Продам 1-кімнатну квартиру в новобудові, Журавлевка, Код: 815309/1

Розташування: Харьков, Журавлевка, Борткевича ул. Дивитися на мапі

64

24.03.26

Заявка на перегляд Замовити дзвінок Запропонувати свою ціну Поскаржитися

Контактні дані

0

(099) ххх-хх-хх

Показати

Номер об'єкта: 815309/1

24 000 $

ГРН USD

Ціна 649 $ / м2

Кількість кімнат: 1

Поверх/поверховість: 6/9

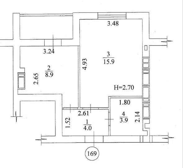
S загаль/житл/кух: 37/-/-

Розташування: Харьков, Журавлевка, Борткевича ул.

Опис:

Продам 1-кімнатну квартиру, площею 37 квадратних метрів на 6 поверсі 9-поверхового будинку в ЖК «Гідропарк», що розташований по вулиці Борткевича. Квартира пропонується під ваш ексклюзивний ремонт та має чудовий вид з вікон на мальовничу природу Гідропарку. В квартирі вже проведено важливе покращення: на лоджії встановлено якісні тепло- та шумоізолюючі склопакети з надійною фурнітурою, що дозволяє облаштувати повноцінний «теплий» балкон. Для контролю витрат та економії на комунальних платежах у квартирі встановлений індивідуальний лічильник тепла. Район має чудову транспортну розв’язку та розвинену інфраструктуру: поруч розташовані зупинки громадського транспорту, ринок, а безпосередньо біля будинку знаходиться річка та зона відпочинку Гідропарк для прогулянок на свіжому повітрі.

Заявка на перегляд Замовити дзвінок Запропонувати свою ціну Поскаржитися

Контактні дані

0

(099) ххх-хх-хх

Показати

Подібні пропозиції:

23 900 $

09.03.23

597

Кількість кімнат: 1

Поверх/поверховість: 11/16

S загаль/житл/кух: 43/-/12

Розташування: Харьков, Журавлевка, Шевченко ул. (Журавлевка)

Детальніше...

25 000 $

05.05.23

466

Кількість кімнат: 1

Поверх/поверховість: 8/9

S загаль/житл/кух: 40/26/12

Розташування: Харьков, Журавлевка, Шевченко ул. (Журавлевка), Киевская метро

Детальніше...

21 800 $

27.01.23

462

Кількість кімнат: 1

Поверх/поверховість: 4/9

S загаль/житл/кух: 40/19/15

Розташування: Харьков, Журавлевка, Борткевича ул.

Детальніше...

26 000 $

14.06.23

450

Кількість кімнат: 1

Поверх/поверховість: 8/13

S загаль/житл/кух: 36/19/6

Розташування: Харьков, Журавлевка, Новоалександровская

Детальніше...

24 000 $

29.01.23

535

Кількість кімнат: 1

Поверх/поверховість: 1/9

S загаль/житл/кух: 37/19/6

Розташування: Харьков, Журавлевка, Шевченко ул. (Журавлевка)

Детальніше...

26 000 $

02.02.23

524

Кількість кімнат: 1

Поверх/поверховість: 14/16

S загаль/житл/кух: 43/-/12

Розташування: Харьков, Журавлевка

Детальніше...

25 000 $

03.02.23

499

Кількість кімнат: 1

Поверх/поверховість: 8/9

S загаль/житл/кух: 41/17/9

Розташування: Харьков, Журавлевка, Шевченко ул. (Журавлевка), Киевская метро

Детальніше...

21 500 $

07.02.23

556

Кількість кімнат: 1

Поверх/поверховість: 8/9

S загаль/житл/кух: 37/-/-

Розташування: Харьков, Журавлевка, Шевченко ул. (Журавлевка), ЖК Гидропарк

Детальніше...

23 600 $

04.09.23

525

Кількість кімнат: 1

Поверх/поверховість: 9/16

S загаль/житл/кух: 43/-/-

Розташування: Харьков, Журавлевка, Борткевича ул., ЖК Гидропарк

Детальніше...

25 000 $

20.02.23

458

Кількість кімнат: 1

Поверх/поверховість: 5/9

S загаль/житл/кух: 37/-/-

Розташування: Харьков, Журавлевка, Шевченко ул. (Журавлевка)

Детальніше...

21 000 $

20.02.23

557

Кількість кімнат: 1

Поверх/поверховість: 7/16

S загаль/житл/кух: 47/-/-

Розташування: Харьков, Журавлевка, Шевченко ул. (Журавлевка), ЖК Гидропарк

Детальніше...

23 000 $

14.03.23

547

Кількість кімнат: 1

Поверх/поверховість: 14/16

S загаль/житл/кух: 43/-/-

Розташування: Харьков, Журавлевка, Шевченко ул. (Журавлевка), ЖК Гидропарк

Детальніше...