Відгуки про АН Город:

Відгуки про АН Город Дивитися всі Додати відгук

Відео відгуки про нас:

Відео відгуки про нас Дивитися всі
Заявка на продаж або оренду нерухомості Написати листа Замовити дзвінок

Продам 4-х кімнатну квартиру в новобудові, Павлово поле, Сокольники, Код: 815298/1

Розташування: Харьков, Павлово поле, Профессорская, Сокольники Дивитися на мапі

54

23.03.26

Заявка на перегляд Замовити дзвінок Запропонувати свою ціну Поскаржитися

Контактні дані

0

(099) ххх-хх-хх

Показати

Номер об'єкта: 815298/1

78 000 $

ГРН USD

Ціна 600 $ / м2

Кількість кімнат: 4

Поверх/поверховість: 14/15

S загаль/житл/кух: 130/-/-

Розташування: Харьков, Павлово поле, Профессорская, Сокольники

Опис:

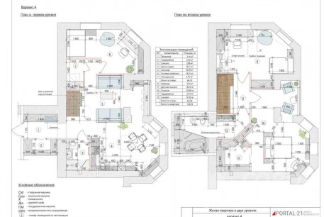
Продам простору дворівневу квартиру в сучасному ЖК “Сокольники” на вул. Професорській. Кладовка 7,9 м² входить у ціну. Загальна площа: 130,1 м². Поверх: 14–15 / 15. Вид: на ліс (переважно). Квартира має зручне та продумане планування: два рівні з чітким зонуванням. Є готовий дизайн-проєкт, перепланування узгоджене з БТІ та внесене в техпаспорт. Перший і другий рівень мають однакову висоту стелі (другий рівень - такий самий повноцінний поверх). Виконано якісний чорновий ремонт: розведена електрик, зроблена сантехніка, штукатурка стін, стяжка підлоги, утеплення стін і стелі (15 поверх). Встановлено: бойлер, якісні радіатор, інсталяції, внутрішні частини змішувачів, металевий каркас сходів. Планування першого рівня: прихожа (з нішею під велику шафу), гардеробна при вході, санвузол (душ, інсталяція, умивальник), кухня-студія, кімната (кабінет / гостьова / спальня), господарське приміщення (пральня + щитова). Другий рівень: спальня з великою гардеробною, дитяча кімната, великий санвузол: ванна, душ, інсталяція, 2 умивальники. Разом із квартирою: кладова 7,9 м² з вікном (14 поверх) з повністю завершеним ремонтом (Встановлена якісна дверь, на підлозі плитка, стіни і стеля пофарбовані, є світло). Будинок зданий у 2020 році. Два ліфти: пасажирський і вантажний, вже заселений, Парковка на території. Планувався наземний паркінг (поки проєкт на паузі). Інфраструктура: приватна школа та дитсадок Бойко, магазин на території ЖК, 3 хв. машиною - спорткомплекс “Тетра”, 5 хв. машиною - Центральний парк, 5 хв. пішки - Лісопарк (велодоріжки, прогулянки), 4 хв. машиною - супермаркети, аптеки.

Заявка на перегляд Замовити дзвінок Запропонувати свою ціну Поскаржитися

Контактні дані

0

(099) ххх-хх-хх

Показати

Подібні пропозиції:

78 000 $

06.02.23

389

Кількість кімнат: 4

Поверх/поверховість: 4/5

S загаль/житл/кух: 78/60/10

Розташування: Харьков, Журавлевка, Новоалександровская, Киевская метро

Детальніше...

75 000 $

20.12.23

282

Кількість кімнат: 4

Поверх/поверховість: 11/13

S загаль/житл/кух: 110/-/-

Розташування: Харьков, Северная Салтовка, Гвардейцев Широнинцев ул. (Северная Салтовка)

Детальніше...

80 000 $

02.03.24

266

Кількість кімнат: 4

Поверх/поверховість: 3/10

S загаль/житл/кух: 122/-/-

Розташування: Харьков, Центр, Клочковская ул. (Центр)

Детальніше...

76 000 $

07.07.25

128

Кількість кімнат: 4

Поверх/поверховість: 6/10

S загаль/житл/кух: 122/70/15

Розташування: Харьков, Новые дома, Героев Харькова пр. (Новые дома), Маршала Жукова метро (Дворец спорта)

Детальніше...