Відгуки про АН Город:

Відгуки про АН Город Дивитися всі Додати відгук

Відео відгуки про нас:

Відео відгуки про нас Дивитися всі
Заявка на продаж або оренду нерухомості Написати листа Замовити дзвінок

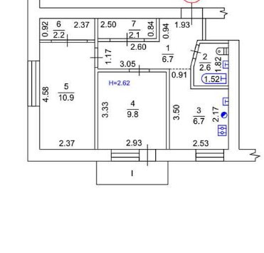
Продам 2-х кімнатну квартиру, Павлово поле, 23 Августа метро, Код: 472594/2

Розташування: Харьков, Павлово поле, 23 Августа ул., 23 Августа метро Дивитися на мапі

16

30.10.25

Заявка на перегляд Замовити дзвінок Запропонувати свою ціну Поскаржитися

Контактні дані

0

(099) ххх-хх-хх

Показати

Номер об'єкта: 472594/2

37 000 $

ГРН USD

Ціна 902 $ / м2

Кількість кімнат: 2

Поверх/поверховість: 4/5

S загаль/житл/кух: 41/-/-

Розташування: Харьков, Павлово поле, 23 Августа ул., 23 Августа метро

Опис:

Продаж 2-кімнатної квартири, площею 41.9 кв. м на вул. 23 Серпня. 4/5 поверх, квартира кутова, кімнати роздільні. Була перепланована квартира, техпаспорт замінений. До метро 10 хвилин, поруч з будинком зупинка транспорту, недалеко супермаркети Клас, Чудо Маркет, Посад, кіоски, у дворі аптека, поруч відділення Нової Пошти. Стан - заходи живи. У квартирі є лічильники на воду, газ, світло. Гаряча вода - колонка. У квартирі залишаються меблі та техніка (холодильник, мікрохвильова піч, пральна машина, пилосос, диван, шафа, меблі на кухні). Балкон зроблений, обшитий всередині і зовні, є шафа. Санвузол суміщений. Є кондиціонер інверторний. У квартирі замінені труби, стояки, батареї, мпо, проводка. На підлозі лінолеум. У коридорі і кімнаті вбудовані шафи-купе.

Заявка на перегляд Замовити дзвінок Запропонувати свою ціну Поскаржитися

Контактні дані

0

(099) ххх-хх-хх

Показати

Подібні пропозиції:

38 000 $

24.02.23

510

Кількість кімнат: 2

Поверх/поверховість: 3/5

S загаль/житл/кух: 44/26/6

Розташування: Харьков, Павлово поле, 23 Августа ул., 23 Августа метро

Детальніше...

35 000 $

27.10.25

471

Кількість кімнат: 2

Поверх/поверховість: 2/5

S загаль/житл/кух: 42/-/6

Розташування: Харьков, Павлово поле, 23 Августа ул., 23 Августа метро

Детальніше...

35 000 $

02.09.24

447

Кількість кімнат: 2

Поверх/поверховість: 1/5

S загаль/житл/кух: 47/30/6

Розташування: Харьков, Павлово поле, Науки просп. (Павлово Поле), 23 Августа метро

Детальніше...

37 000 $

24.06.24

393

Кількість кімнат: 2

Поверх/поверховість: 1/2

S загаль/житл/кух: 63/-/-

Розташування: Харьков, Павлово поле, Малоджанкойская, 23 Августа метро

Детальніше...

35 000 $

24.07.23

395

Кількість кімнат: 2

Поверх/поверховість: 3/5

S загаль/житл/кух: 45/-/-

Розташування: Харьков, Павлово поле, Алексея Деревянко ул., 23 Августа метро

Детальніше...

35 000 $

26.02.24

329

Кількість кімнат: 2

Поверх/поверховість: 2/5

S загаль/житл/кух: 46/27/6

Розташування: Харьков, Павлово поле, Алексея Деревянко ул., 23 Августа метро

Детальніше...

39 500 $

03.09.23

330

Кількість кімнат: 2

Поверх/поверховість: 4/5

S загаль/житл/кух: 45/33/6

Розташування: Харьков, Павлово поле, 23 Августа ул., 23 Августа метро

Детальніше...

36 500 $

27.09.23

286

Кількість кімнат: 2

Поверх/поверховість: 4/5

S загаль/житл/кух: 45/-/-

Розташування: Харьков, Павлово поле, 23 Августа ул., 23 Августа метро

Детальніше...

35 000 $

27.09.23

350

Кількість кімнат: 2

Поверх/поверховість: 3/9

S загаль/житл/кух: 55/32/9

Розташування: Харьков, Павлово поле, 23 Августа пер., 23 Августа метро

Детальніше...

34 000 $

18.11.23

299

Кількість кімнат: 2

Поверх/поверховість: 4/5

S загаль/житл/кух: 45/-/-

Розташування: Харьков, Павлово поле, Науки просп. (Павлово Поле), 23 Августа метро

Детальніше...

36 000 $

11.11.24

316

Кількість кімнат: 2

Поверх/поверховість: 6/9

S загаль/житл/кух: 45/28/6

Розташування: Харьков, Павлово поле, Алексея Деревянко ул., 23 Августа метро

Детальніше...

36 000 $

05.09.24

264

Кількість кімнат: 2

Поверх/поверховість: 7/9

S загаль/житл/кух: 45/-/-

Розташування: Харьков, Павлово поле, Науки просп. (Павлово Поле), 23 Августа метро

Детальніше...