Відгуки про АН Город:

Відгуки про АН Город Дивитися всі Додати відгук

Відео відгуки про нас:

Відео відгуки про нас Дивитися всі
Заявка на продаж або оренду нерухомості Написати листа Замовити дзвінок

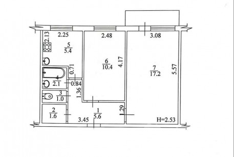
Продам 2-х кімнатну квартиру, Новые дома, Маршала Жукова метро (Дворец спорта), Код: 807800/7

Розташування: Харьков, Новые дома, Танкопия ул., Маршала Жукова метро (Дворец спорта) Дивитися на мапі

158

04.06.25

Заявка на перегляд Замовити дзвінок Запропонувати свою ціну Поскаржитися

Контактні дані

1

Елена Николаевна

(099) ххх-хх-хх

(068) ххх-хх-хх

Показати

Номер об'єкта: 807800/7

24 500 $

ГРН USD

Ціна 544 $ / м2

Кількість кімнат: 2

Поверх/поверховість: 3/5

S загаль/житл/кух: 45/28/6

Розташування: Харьков, Новые дома, Танкопия ул., Маршала Жукова метро (Дворец спорта)

Опис:

Продам 2-кімнатну квартиру по вул. Каденюка (Танкопія) біля м. Палац спорту. Палац спорту. Загальна площа - 45,6 кв. м., 2 роздільні кімнати, кухня - 5,4 кв. м. Квартира знаходиться на 3м поверсі 5ти поверхового будинку. Квартира без ремонту, але в задовільному стані, нові МПО вікна. Квартира готова до продажу. Хороший, тихий, безпечний спальний район. У 3 хв ходьби АТБ, магазини, супермаркети, аптеки, відділення нової пошти і банку, зупинка наземного транспорту. До метро "Палац спорту" 12-15 хв.

Заявка на перегляд Замовити дзвінок Запропонувати свою ціну Поскаржитися

Контактні дані

1

Елена Николаевна

(099) ххх-хх-хх

(068) ххх-хх-хх

Показати

Подібні пропозиції:

27 000 $

07.02.23

656

Кількість кімнат: 2

Поверх/поверховість: 5/5

S загаль/житл/кух: 46/28/6

Розташування: Харьков, Новые дома, Танкопия ул., Маршала Жукова метро (Дворец спорта)

Детальніше...

27 000 $

25.04.23

515

Кількість кімнат: 2

Поверх/поверховість: 1/5

S загаль/житл/кух: 44/28/6

Розташування: Харьков, Новые дома, Жасминовый б-р, Маршала Жукова метро (Дворец спорта)

Детальніше...

25 000 $

09.01.25

575

Кількість кімнат: 2

Поверх/поверховість: 5/5

S загаль/житл/кух: 44/30/6

Розташування: Харьков, Новые дома, Маршала Жукова метро (Дворец спорта)

Детальніше...

23 000 $

22.10.23

465

Кількість кімнат: 2

Поверх/поверховість: 1/5

S загаль/житл/кух: 33/22/10

Розташування: Харьков, Новые дома, Василия Мельникова ул., Маршала Жукова метро (Дворец спорта)

Детальніше...

24 000 $

19.10.24

343

Кількість кімнат: 2

Поверх/поверховість: 5/5

S загаль/житл/кух: 44/28/6

Розташування: Харьков, Новые дома, Стадионный проезд, Маршала Жукова метро (Дворец спорта)

Детальніше...

22 000 $

06.04.24

371

Кількість кімнат: 2

Поверх/поверховість: 5/5

S загаль/житл/кух: 45/28/-

Розташування: Харьков, Новые дома, Петра Григоренко пр., Маршала Жукова метро (Дворец спорта)

Детальніше...

22 000 $

10.04.24

350

Кількість кімнат: 2

Поверх/поверховість: 4/5

S загаль/житл/кух: 27/-/-

Розташування: Харьков, Новые дома, Ньютона ул. (Новые дома), Маршала Жукова метро (Дворец спорта)

Детальніше...

26 000 $

03.09.24

379

Кількість кімнат: 2

Поверх/поверховість: 5/5

S загаль/житл/кух: 45/28/6

Розташування: Харьков, Новые дома, Стадионный проезд, Маршала Жукова метро (Дворец спорта)

Детальніше...

25 000 $

27.04.24

370

Кількість кімнат: 2

Поверх/поверховість: 3/5

S загаль/житл/кух: 45/18/6

Розташування: Харьков, Новые дома, Танкопия ул., Маршала Жукова метро (Дворец спорта)

Детальніше...

25 000 $

03.06.24

436

Кількість кімнат: 2

Поверх/поверховість: 3/5

S загаль/житл/кух: 45/28/6

Розташування: Харьков, Новые дома, Байрона просп. (Новые дома), Маршала Жукова метро (Дворец спорта)

Детальніше...

23 500 $

15.07.24

420

Кількість кімнат: 2

Поверх/поверховість: 4/5

S загаль/житл/кух: 47/28/6

Розташування: Харьков, Новые дома, Стадионный проезд, Маршала Жукова метро (Дворец спорта)

Детальніше...

21 700 $

29.09.24

279

Кількість кімнат: 2

Поверх/поверховість: 1/5

S загаль/житл/кух: 45/-/6

Розташування: Харьков, Новые дома, Петра Григоренко пр., Маршала Жукова метро (Дворец спорта)

Детальніше...