Відгуки про АН Город:

Відгуки про АН Город Дивитися всі Додати відгук

Відео відгуки про нас:

Відео відгуки про нас Дивитися всі
Заявка на продаж або оренду нерухомості Написати листа Замовити дзвінок

Продам 3-х кімнатну квартиру в новобудові, Новые дома, Маршала Жукова метро (Дворец спорта), Код: 726617/2

Розташування: Харьков, Новые дома, Маршала Жукова метро (Дворец спорта) Дивитися на мапі

218

16.04.25

Заявка на перегляд Замовити дзвінок Запропонувати свою ціну Поскаржитися

Контактні дані

0

Татьяна Николаевна

(066) ххх-хх-хх

(098) ххх-хх-хх

Показати

Номер об'єкта: 726617/2

57 000 $

ГРН USD

Ціна 613 $ / м2

Кількість кімнат: 3

Поверх/поверховість: 5/14

S загаль/житл/кух: 93/-/-

Розташування: Харьков, Новые дома, Маршала Жукова метро (Дворец спорта)

Опис:

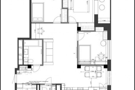
Продам 3-кімнатну квартиру в ЖК "Пролісок". Загальна площа: 93 м². Поверх: 5-й із 14. Будинок повністю побудований, очікує здачу в 2025 році. Планування: простора кухня-студія, три окремі спальні, два санвузли, балкон. Переваги комплексу: закрита територія, що охороняється, відеоспостереження, гостьовий паркінг на території, два ліфти (пасажирський і вантажний), можливість встановлення індивідуальних лічильників тепла, зручна локація - 3 хвилини пішки до метро "Палац Спорту". На фото представлений варіант проєкту ремонту - для наочності планування та можливого дизайну.

Заявка на перегляд Замовити дзвінок Запропонувати свою ціну Поскаржитися

Контактні дані

0

Татьяна Николаевна

(066) ххх-хх-хх

(098) ххх-хх-хх

Показати

Подібні пропозиції:

58 000 $

12.03.23

595

Кількість кімнат: 3

Поверх/поверховість: 4/4

S загаль/житл/кух: 76/55/12

Розташування: Харьков, Новые дома, Льва Ландау просп. (Новые дома), Маршала Жукова метро (Дворец спорта)

Детальніше...

58 000 $

19.02.24

523

Кількість кімнат: 3

Поверх/поверховість: 9/9

S загаль/житл/кух: 97/38/14

Розташування: Харьков, Новые дома, Льва Ландау просп. (Новые дома), Маршала Жукова метро (Дворец спорта)

Детальніше...

60 000 $

24.10.23

440

Кількість кімнат: 3

Поверх/поверховість: 10/10

S загаль/житл/кух: 60/-/-

Розташування: Харьков, Новые дома, Харьковских Дивизий ул., Маршала Жукова метро (Дворец спорта)

Детальніше...

58 000 $

10.06.24

370

Кількість кімнат: 3

Поверх/поверховість: 1/14

S загаль/житл/кух: 91/-/-

Розташування: Харьков, Новые дома, Героев Харькова пр. (Новые дома), Маршала Жукова метро (Дворец спорта)

Детальніше...

60 000 $

11.09.25

197

Кількість кімнат: 3

Поверх/поверховість: 3/9

S загаль/житл/кух: 63/35/10

Розташування: Харьков, Новые дома, Льва Ландау просп. (Новые дома), Маршала Жукова метро (Дворец спорта)

Детальніше...

57 000 $

08.02.26

117

Кількість кімнат: 3

Поверх/поверховість: 3/9

S загаль/житл/кух: 80/45/10

Розташування: Харьков, Новые дома, Льва Ландау просп. (Новые дома), Маршала Жукова метро (Дворец спорта)

Детальніше...