Відгуки про АН Город:

Відгуки про АН Город Дивитися всі Додати відгук

Відео відгуки про нас:

Відео відгуки про нас Дивитися всі
Заявка на продаж або оренду нерухомості Написати листа Замовити дзвінок

Продам 3-х кімнатну квартиру в новобудові, Алексеевка, Код: 811980/1

Розташування: Харьков, Алексеевка, Победы пр. Дивитися на мапі

186

02.04.25

Заявка на перегляд Замовити дзвінок Запропонувати свою ціну Поскаржитися

Контактні дані

1

Маргарита Юрьевна

(099) ххх-хх-хх

Показати

Номер об'єкта: 811980/1

42 000 $

ГРН USD

Ціна 512 $ / м2

Кількість кімнат: 3

Поверх/поверховість: 9/9

S загаль/житл/кух: 82/-/-

Розташування: Харьков, Алексеевка, Победы пр.

Опис:

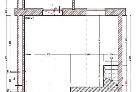
Продаж двоповерхової квартири, площею 82 м2 в ЖК «Победы 2» в будівельному стані з видом на ліс. 9 поверх 41 м2 та 10 технічний поверх 41 м2. Виконано офіційний проект отвору ЖС-1 у перекритті між поверхами. На етапі будівництва на технічному поверсі закладені перемички вікон під плиту перекриття, що надає можливість зробити повноцінні панорамні вікна та відкритий балкон на 10 поверсі. У квартиру заведено труби опалення більшого діаметру для якісної подачі центрального опалення на 10 поверх. Можливість зробити санвузол на кожному рівні. Перегородки не робились, цегла складна. Можливість робити будь-яке планування, залежно від ваших уподобань та потреб.

Заявка на перегляд Замовити дзвінок Запропонувати свою ціну Поскаржитися

Контактні дані

1

Маргарита Юрьевна

(099) ххх-хх-хх

Показати

Подібні пропозиції:

40 000 $

10.05.26

749

Кількість кімнат: 3

Поверх/поверховість: 2/4

S загаль/житл/кух: 70/41/11

Розташування: Харьков, Одесская, Одесская ул.

Детальніше...

45 000 $

14.08.23

765

Кількість кімнат: 3

Поверх/поверховість: 7/9

S загаль/житл/кух: 88/61/10

Розташування: Харьков, Холодная Гора, Семинарская ул.

Детальніше...

45 000 $

21.01.23

600

Кількість кімнат: 3

Поверх/поверховість: 8/9

S загаль/житл/кух: 45/-/-

Розташування: Харьков, Новые дома, Льва Ландау просп. (Новые дома), Дворец спорта

Детальніше...

43 000 $

19.02.23

474

Кількість кімнат: 3

Поверх/поверховість: 7/9

S загаль/житл/кух: 58/-/-

Розташування: Харьков, Салтовка, Шевченковский пер., Академика Павлова метро

Детальніше...

40 000 $

20.02.23

457

Кількість кімнат: 3

Поверх/поверховість: 8/9

S загаль/житл/кух: 79/47/9

Розташування: Харьков, Журавлевка, Вологодская ул., Киевская метро

Детальніше...

41 999 $

29.03.23

570

Кількість кімнат: 3

Поверх/поверховість: 5/5

S загаль/житл/кух: 60/28/12

Розташування: Харьков, Гагарина проспект, Александра Матросова ул. (Гагарина)

Детальніше...

45 000 $

02.03.23

526

Кількість кімнат: 3

Поверх/поверховість: 16/19

S загаль/житл/кух: 91/52/13

Розташування: Харьков, Салтовка, Гвардейцев Широнинцев ул. (Салтовка)

Детальніше...

41 000 $

06.04.23

477

Кількість кімнат: 3

Поверх/поверховість: 15/16

S загаль/житл/кух: 60/-/-

Розташування: Харьков, Гагарина проспект, Заливная ул.

Детальніше...

41 000 $

06.12.24

619

Кількість кімнат: 3

Поверх/поверховість: 6/10

S загаль/житл/кух: 98/55/12

Розташування: Харьков, Новые дома, Героев Харькова пр. (Новые дома), Маршала Жукова метро (Дворец спорта)

Детальніше...

45 000 $

25.05.23

534

Кількість кімнат: 3

Поверх/поверховість: 12/14

S загаль/житл/кух: 68/38/7

Розташування: Харьков, Новые дома, Петра Григоренко пр.

Детальніше...

40 000 $

06.02.25

516

Кількість кімнат: 3

Поверх/поверховість: 5/6

S загаль/житл/кух: 51/-/-

Розташування: Харьков, Одесская, Качановская

Детальніше...

44 000 $

15.09.23

611

Кількість кімнат: 3

Поверх/поверховість: 2/5

S загаль/житл/кух: 72/-/-

Розташування: Харьков, Новые дома, Льва Ландау просп. (Новые дома), Маршала Жукова метро (Дворец спорта)

Детальніше...