Відгуки про АН Город:

Відгуки про АН Город Дивитися всі Додати відгук

Відео відгуки про нас:

Відео відгуки про нас Дивитися всі
Заявка на продаж або оренду нерухомості Написати листа Замовити дзвінок

Продам 1-кімнатну квартиру, Рогань, Код: 811801/1

Розташування: Харьков, Рогань, Роганская ул. Дивитися на мапі

150

15.03.25

Заявка на перегляд Замовити дзвінок Запропонувати свою ціну Поскаржитися

Контактні дані

0

(099) ххх-хх-хх

Показати

Номер об'єкта: 811801/1

20 000 $

ГРН USD

Ціна 714 $ / м2

Кількість кімнат: 1

Поверх/поверховість: 2/9

S загаль/житл/кух: 28/-/-

Розташування: Харьков, Рогань, Роганская ул.

Опис:

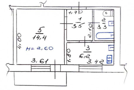
Продаж 1-кімнатної квартири, площею 28,5 кв.м на вул. Роганській. Житлова площа: 14,4 кв.м., кухня: 6,2 кв.м., суміщений санвузол: 3,3 кв.м., коридор: 3,5 кв.м., балкон: 3,2 кв.м. Поверх: 2/9. Висота стель: 2,60 м. Встановлено нові металопластикові вікна та замінено балконний блок. Чистий і доглянутий під'їзд з пасажирським ліфтом. Закритий тамбур на три квартири. Плитка у ванній кімнаті та на кухні. Є можливість паркування авто у дворі. Відмінна транспортна розв'язка (зупинки транспорту - 2-5 хв). ТЦ «Чудо-Маркет» - 5 хв. Супермаркет «Клас» - 16 хв., АТБ-маркет - 22 хв., 9-та міська поліклініка - 10 хв., школи та дитячі садки - 8-20 хв., парк «Зелений гай» - 38 хв. пішки. Фото зроблені на ширококутну камеру, тому квартира здається більшою.

Заявка на перегляд Замовити дзвінок Запропонувати свою ціну Поскаржитися

Контактні дані

0

(099) ххх-хх-хх

Показати

Подібні пропозиції:

19 000 $

21.01.23

596

Кількість кімнат: 1

Поверх/поверховість: 2/9

S загаль/житл/кух: 32/17/6

Розташування: Харьков, Рогань, Горизонт

Детальніше...

18 000 $

21.01.23

565

Кількість кімнат: 1

Поверх/поверховість: 3/9

S загаль/житл/кух: 33/24/6

Розташування: Харьков, Рогань, Большая Кольцевая, Горизонт

Детальніше...

17 000 $

26.01.23

500

Кількість кімнат: 1

Поверх/поверховість: 8/9

S загаль/житл/кух: 35/17/6

Розташування: Харьков, Рогань, Роганская ул.

Детальніше...

20 500 $

30.01.23

513

Кількість кімнат: 1

Поверх/поверховість: 7/9

S загаль/житл/кух: 33/19/7

Розташування: Харьков, Рогань, Роганская ул.

Детальніше...

20 000 $

21.06.24

511

Кількість кімнат: 1

Поверх/поверховість: 4/5

S загаль/житл/кух: 32/-/-

Розташування: Харьков, Рогань, Шариковая ул., Восточный

Детальніше...

20 500 $

22.02.23

484

Кількість кімнат: 1

Поверх/поверховість: 7/9

S загаль/житл/кух: 33/17/7

Розташування: Харьков, Рогань, Роганский ж/м

Детальніше...

21 900 $

03.05.23

468

Кількість кімнат: 1

Поверх/поверховість: 9/9

S загаль/житл/кух: 33/16/6

Розташування: Харьков, Рогань, Грицевца бул.

Детальніше...

18 000 $

09.02.23

460

Кількість кімнат: 1

Поверх/поверховість: 3/9

S загаль/житл/кух:

Розташування: Харьков, Рогань, Большая Кольцевая

Детальніше...

19 000 $

15.03.23

471

Кількість кімнат: 1

Поверх/поверховість: 5/9

S загаль/житл/кух: 39/18/9

Розташування: Харьков, Рогань, Грицевца ул.

Детальніше...

20 000 $

27.04.25

468

Кількість кімнат: 1

Поверх/поверховість: 9/9

S загаль/житл/кух: 46/22/10

Розташування: Харьков, Рогань, Луи Пастера пер.

Детальніше...

23 000 $

02.04.23

423

Кількість кімнат: 1

Поверх/поверховість: 8/9

S загаль/житл/кух: 33/-/-

Розташування: Харьков, Рогань, Ростовская ул. (Рогань)

Детальніше...

19 800 $

17.04.23

438

Кількість кімнат: 1

Поверх/поверховість: 8/9

S загаль/житл/кух: 38/18/9

Розташування: Харьков, Рогань, Грицевца ул.

Детальніше...