Відгуки про АН Город:

Відгуки про АН Город Дивитися всі Додати відгук

Відео відгуки про нас:

Відео відгуки про нас Дивитися всі
Заявка на продаж або оренду нерухомості Написати листа Замовити дзвінок

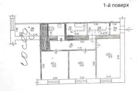
Продам 3-х кімнатну квартиру, Салтовка, Код: 811614/1

Розташування: Харьков, Салтовка, Краснодарская Дивитися на мапі

132

25.02.25

Заявка на перегляд Замовити дзвінок Запропонувати свою ціну Поскаржитися

Контактні дані

0

Ольга Леонидовна

(096) ххх-хх-хх

(093) ххх-хх-хх

Показати

Номер об'єкта: 811614/1

25 000 $

ГРН USD

Ціна 379 $ / м2

Кількість кімнат: 3

Поверх/поверховість: 1/16

S загаль/житл/кух: 66/-/-

Розташування: Харьков, Салтовка, Краснодарская

Опис:

Продам 3-комнатную квартиру возле м. Масельского по ул. Единства (Краснодарская). Очень удобная планировка. В 100 метрах у реки есть комплекс для прогулок и отдыха с лежаками и площадками. Рядом есть много различных супермаркетов и больничный комплекс. Есть удобная транспортная развязка. За все время войны там не было ни одного прилета. 1-й этаж в многоэтажке, есть решетки на окнах. Квартира продается со всей мебелью и техникой. Одна комната без ремонта. Общая площадь - 66,2кв.м. Площадь кухни - 6,6кв.м.

Заявка на перегляд Замовити дзвінок Запропонувати свою ціну Поскаржитися

Контактні дані

0

Ольга Леонидовна

(096) ххх-хх-хх

(093) ххх-хх-хх

Показати

Подібні пропозиції:

25 000 $

15.05.24

792

Кількість кімнат: 3

Поверх/поверховість: 5/12

S загаль/житл/кух: 64/45/6

Розташування: Харьков, Салтовка, Амосова ул.

Детальніше...

25 000 $

10.02.23

601

Кількість кімнат: 3

Поверх/поверховість: 1/9

S загаль/житл/кух: 68/-/-

Розташування: Харьков, Салтовка, Солнечная

Детальніше...

27 000 $

04.04.23

625

Кількість кімнат: 3

Поверх/поверховість: 6/12

S загаль/житл/кух: 65/29/7

Розташування: Харьков, Салтовка, Краснодарская

Детальніше...

28 000 $

23.03.23

497

Кількість кімнат: 3

Поверх/поверховість: 5/

S загаль/житл/кух: 64/42/7

Розташування: Харьков, Салтовка, Салтовское шоссе

Детальніше...

25 000 $

22.02.23

519

Кількість кімнат: 3

Поверх/поверховість: 1/9

S загаль/житл/кух: 65/-/-

Розташування: Харьков, Салтовка, 531 м/р

Детальніше...

24 000 $

23.02.23

627

Кількість кімнат: 3

Поверх/поверховість: 8/9

S загаль/житл/кух: 70/-/-

Розташування: Харьков, Салтовка, Героев Труда ул.

Детальніше...

27 000 $

02.03.23

640

Кількість кімнат: 3

Поверх/поверховість: 3/5

S загаль/житл/кух: 67/-/-

Розташування: Харьков, Салтовка, Юбилейная ул., Кулиничи

Детальніше...

25 000 $

28.12.23

540

Кількість кімнат: 3

Поверх/поверховість: 1/5

S загаль/житл/кух: 54/26/6

Розташування: Харьков, Салтовка, Гвардейцев Широнинцев ул. (Салтовка)

Детальніше...

25 000 $

20.03.23

592

Кількість кімнат: 3

Поверх/поверховість: 3/5

S загаль/житл/кух: 65/45/6

Розташування: Харьков, Салтовка, Тракторостроителей просп.

Детальніше...

28 000 $

04.04.23

530

Кількість кімнат: 3

Поверх/поверховість: 1/9

S загаль/житл/кух: 54/33/6

Розташування: Харьков, Салтовка, Амосова ул.

Детальніше...

22 500 $

04.04.23

518

Кількість кімнат: 3

Поверх/поверховість: 4/9

S загаль/житл/кух: 40/-/-

Розташування: Харьков, Салтовка, Академика Павлова метро

Детальніше...

24 300 $

12.04.23

465

Кількість кімнат: 3

Поверх/поверховість: 3/5

S загаль/житл/кух: 59/-/-

Розташування: Харьков, Салтовка

Детальніше...