Відгуки про АН Город:

Відгуки про АН Город Дивитися всі Додати відгук

Відео відгуки про нас:

Відео відгуки про нас Дивитися всі
Заявка на продаж або оренду нерухомості Написати листа Замовити дзвінок

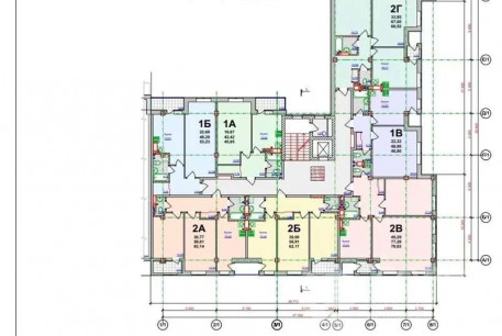
Продам 2-х кімнатну квартиру в новобудові, Гагарина проспект, Метростроителей метро, Код: 809613/1

Розташування: Харьков, Гагарина проспект, Оренбургская, Метростроителей метро Дивитися на мапі

329

07.09.24

Заявка на перегляд Замовити дзвінок Запропонувати свою ціну Поскаржитися

Контактні дані

0

(099) ххх-хх-хх

Показати

Номер об'єкта: 809613/1

90 000 $

ГРН USD

Ціна 1 139 $ / м2

Кількість кімнат: 2

Поверх/поверховість: 2/10

S загаль/житл/кух: 79/-/-

Розташування: Харьков, Гагарина проспект, Оренбургская, Метростроителей метро

Опис:

Продам 2-кімнатну квартиру по вул. Оренбурзька. Новий сучасний житловий комплекс (ЖК «Спортивний») розташовується в безпосередній близькості від центру міста поблизу вул. Плеханівської у Слобідському районі міста Харкова та відповідатиме найсучаснішим вимогам до якості життя в районі з добре розвиненою інфраструктурою і зручною транспортною розв'язкою. Новий комплекс порадує городян абсолютно новим підходом до якості будівництва, від загальної концепції забудови до найдрібніших деталей. Стіни виконані з газобетону, що робить будинок максимально комфортним, а використання утеплення по всьому фасаду робить вашу квартиру теплою і тихою. Встановлення в будинку сучасних швидкісних і безшумних ліфтів забезпечать мешканцям зручність і безпеку. Усі квартири в ЖК «Спортивний» здаються без внутрішнього оздоблення: вводиться електричний кабель у квартиру, холодне водопостачання, гаряче водопостачання, водовідведення, встановлюються віконні та балконні склопакети європейської якості. Опалення в будинку центральне (міські теплові мережі з установкою індивідуальних теплових лічильників). Для зручності наших покупців ми встановлюємо у квартирах лічильники на воду, електроенергію та індивідуальний лічильник обліку теплової енергії для кожної квартири. Встановлення індивідуального лічильника обліку теплової енергії дасть змогу покупцеві оплачувати саме ту кількість тепла, що надійшла в його квартиру, та суттєво скоротить витрати на комунальні платежі. У пішій досяжності від житлового комплексу, що будується, знаходяться чотири виходи станції метро «Спортивна» і три виходи станції метро «Метробудівників ім.Ващенка». На відстані не більше 100 метрів від будинку розташовані трамвайна зупинка (маршрути №5 і №8) і зупинка маршрутних автобусів 232е, 244е/т, 251е, 260е/т. У безпосередній близькості від будинку знаходиться загальноосвітня школа I-III ступенів №151 (близько 400 метрів) і Харківська гімназія № 46 імені М. В. Ломоносова (близько 600 метрів), а також за 10 хвилин пішки від будинку розташовані два дитячих садки. У районі розташування комплексу добре розвинена соціальна інфраструктура - медичні центри та поліклініки, бібліотеки, поштові відділення та багато іншого. Центральний стадіон міста Харкова ОСК «Металіст» знаходиться в 300-х метрах від житлового комплексу. Для активного проведення часу на території ОСК «Металіст» розташовані поля для гри у футбол, у підтрибунних приміщеннях розміщені зали для занять різними видами спорту (боротьба, легка атлетика, важка атлетика), зали для заняття фітнесом. Усім прихильникам активного способу життя, які проживатимуть у ЖК «Спортивний», легко знайти варіанти спортивних занять за своїми інтересами та потребами. Для культурно-творчого розвитку дітей і дозвілля дорослих у 350 метрах розташований Харківський муніципальний культурний центр ДК «Металіст», біля якого знаходиться невеликий сквер для відпочинку і прогулянок. У пішій доступності розташований Кінний ринок, гіпермаркет «Ашан», відділення ПАТ «Мегабанк», кафе і ресторани, аптеки, салони краси, служби побуту, адміністрація Слобідського району та Центр надання адміністративних послуг Слобідського району.

Заявка на перегляд Замовити дзвінок Запропонувати свою ціну Поскаржитися

Контактні дані

0

(099) ххх-хх-хх

Показати

Подібні пропозиції:

89 000 $

03.03.23

510

Кількість кімнат: 2

Поверх/поверховість: 5/16

S загаль/житл/кух: 75/-/-

Розташування: Харьков, Гагарина проспект, Молочная ул.

Детальніше...

88 000 $

09.09.24

480

Кількість кімнат: 2

Поверх/поверховість: 5/16

S загаль/житл/кух: 78/-/-

Розташування: Харьков, Гагарина проспект, Молочная ул.

Детальніше...

87 000 $

11.10.23

501

Кількість кімнат: 2

Поверх/поверховість: 13/16

S загаль/житл/кух: 87/36/25

Розташування: Харьков, Гагарина проспект, Гагарина пр. (Гагарина Проспект)

Детальніше...

90 000 $

08.11.23

412

Кількість кімнат: 2

Поверх/поверховість: 14/16

S загаль/житл/кух: 87/-/-

Розташування: Харьков, Гагарина проспект, Искринская, Защитников Украины метро (Площадь Восстания)

Детальніше...

89 000 $

03.10.25

130

Кількість кімнат: 2

Поверх/поверховість: 2/16

S загаль/житл/кух: 67/-/-

Розташування: Харьков, Гагарина проспект, Молочная ул., Проспект Гагарина метро

Детальніше...