Відгуки про АН Город:

Відгуки про АН Город Дивитися всі Додати відгук

Відео відгуки про нас:

Відео відгуки про нас Дивитися всі
Заявка на продаж або оренду нерухомості Написати листа Замовити дзвінок

Продам 3-х кімнатну квартиру, Салтовка, Академика Павлова метро, Код: 690294/3

Розташування: Харьков, Салтовка, Гвардейцев Широнинцев ул. (Салтовка), Академика Павлова метро Дивитися на мапі

214

02.08.24

Заявка на перегляд Замовити дзвінок Запропонувати свою ціну Поскаржитися

Контактні дані

0

(099) ххх-хх-хх

Показати

Номер об'єкта: 690294/3

35 000 $

ГРН USD

Ціна 500 $ / м2

Кількість кімнат: 3

Поверх/поверховість: 4/16

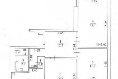
S загаль/житл/кух: 70/36/12

Розташування: Харьков, Салтовка, Гвардейцев Широнинцев ул. (Салтовка), Академика Павлова метро

Опис:

Продається 3 кімнатна квартира за 10 хв ходьби від метро Академіка Павлова. Стан житловий, але потребує ремонту. Водяні стояки замінено на пластик, встановлено 4 тарифний лічильник на воду. Дві кімнати і кухня в нормальному стані, у вікнах встановлено 3х камерний склопакет, у кімнатах на підлозі ламінат. У великій кімнаті та холі треба робити ремонт. Балкони засклені, але старою столяркою. Міжкімнатні двері з натурального дерева. Броньовані вхідні двері. Тихі сусіди. Поруч супермаркет. Квартира вільна.

Заявка на перегляд Замовити дзвінок Запропонувати свою ціну Поскаржитися

Контактні дані

0

(099) ххх-хх-хх

Показати

Подібні пропозиції:

35 500 $

27.01.23

662

Кількість кімнат: 3

Поверх/поверховість: 4/5

S загаль/житл/кух: 86/48/14

Розташування: Харьков, Салтовка, Владислава Зубенко ул., 24 этажка

Детальніше...

35 900 $

18.05.23

756

Кількість кімнат: 3

Поверх/поверховість: 5/9

S загаль/житл/кух: 64/45/7

Розташування: Харьков, Салтовка, Гвардейцев Широнинцев ул. (Салтовка), 608 м/р

Детальніше...

36 000 $

13.09.24

613

Кількість кімнат: 3

Поверх/поверховість: 1/5

S загаль/житл/кух: 64/45/6

Розташування: Харьков, Салтовка, Валентиновская ул., 608 м/р

Детальніше...

36 500 $

21.01.23

575

Кількість кімнат: 3

Поверх/поверховість: 8/12

S загаль/житл/кух: 65/-/7

Розташування: Харьков, Салтовка, Тракторостроителей просп., 607 м/р

Детальніше...

36 000 $

29.09.24

618

Кількість кімнат: 3

Поверх/поверховість: 5/5

S загаль/житл/кух: 62/36/6

Розташування: Харьков, Салтовка, Тракторостроителей просп., Студенческая метро

Детальніше...

38 000 $

07.02.23

567

Кількість кімнат: 3

Поверх/поверховість: 11/12

S загаль/житл/кух: 69/-/-

Розташування: Харьков, Салтовка, Велозаводская ул.

Детальніше...

34 999 $

14.02.23

684

Кількість кімнат: 3

Поверх/поверховість: 2/9

S загаль/житл/кух: 65/-/-

Розташування: Харьков, Салтовка, Героев Труда ул., Героев Труда метро

Детальніше...

32 900 $

19.05.23

561

Кількість кімнат: 3

Поверх/поверховість: 3/5

S загаль/житл/кух:

Розташування: Харьков, Салтовка, Бучмы ул., 531 м/р

Детальніше...

34 999 $

26.02.23

559

Кількість кімнат: 3

Поверх/поверховість: 2/9

S загаль/житл/кух: 68/40/6

Розташування: Харьков, Салтовка, Героев Труда ул., Героев Труда метро

Детальніше...

34 999 $

02.03.23

542

Кількість кімнат: 3

Поверх/поверховість: 2/9

S загаль/житл/кух: 65/-/-

Розташування: Харьков, Салтовка, Героев Труда ул., Героев Труда метро

Детальніше...

35 000 $

02.03.23

540

Кількість кімнат: 3

Поверх/поверховість: 1/9

S загаль/житл/кух: 54/33/6

Розташування: Харьков, Салтовка, Тракторостроителей просп.

Детальніше...

32 800 $

19.05.23

436

Кількість кімнат: 3

Поверх/поверховість: 2/9

S загаль/житл/кух: 66/44/8

Розташування: Харьков, Салтовка, Бучмы ул., 533 м/р

Детальніше...