Відгуки про АН Город:

Відгуки про АН Город Дивитися всі Додати відгук

Відео відгуки про нас:

Відео відгуки про нас Дивитися всі
Заявка на продаж або оренду нерухомості Написати листа Замовити дзвінок

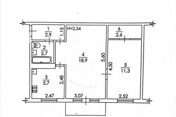
Продам 2-х кімнатну квартиру, ХТЗ, Масельского метро, Код: 808304/1

Розташування: Харьков, ХТЗ, Масельского метро Дивитися на мапі

444

07.10.24

Заявка на перегляд Замовити дзвінок Запропонувати свою ціну Поскаржитися

Контактні дані

0

(099) ххх-хх-хх

Показати

Номер об'єкта: 808304/1

16 000 $

ГРН USD

Ціна 500 $ / м2

Кількість кімнат: 2

Поверх/поверховість: 1/1

S загаль/житл/кух: 32/-/-

Розташування: Харьков, ХТЗ, Масельского метро

Опис:

Продам 2-кімнатну квартиру на ХТЗ. Площа 32 кв.м. Дві невеликі кімнати. Будинок на 5 квартир. У кожної квартири окремий вхід. Дуже хороші сусіди. Розташований в 10 хвилинах ходьби від станції метро Масельського.

Заявка на перегляд Замовити дзвінок Запропонувати свою ціну Поскаржитися

Контактні дані

0

(099) ххх-хх-хх

Показати

Подібні пропозиції:

17 500 $

14.04.23

612

Кількість кімнат: 2

Поверх/поверховість: /

S загаль/житл/кух: 45/30/6

Розташування: Харьков, ХТЗ, Героев Харькова пр. (ХТЗ)

Детальніше...

19 000 $

27.05.24

528

Кількість кімнат: 2

Поверх/поверховість: 4/5

S загаль/житл/кух: 43/-/-

Розташування: Харьков, ХТЗ, Косарева ул., ХТЗ метро

Детальніше...

19 000 $

14.01.24

613

Кількість кімнат: 2

Поверх/поверховість: 4/5

S загаль/житл/кух: 45/31/7

Розташування: Харьков, ХТЗ, Мира ул.

Детальніше...

19 000 $

29.12.23

386

Кількість кімнат: 2

Поверх/поверховість: 4/5

S загаль/житл/кух: 47/-/-

Розташування: Харьков, ХТЗ, Мира ул., Пролетарская метро (Индустриальная)

Детальніше...

17 700 $

25.05.24

322

Кількість кімнат: 2

Поверх/поверховість: 4/5

S загаль/житл/кух: 47/30/5

Розташування: Харьков, ХТЗ, Архитектора Алешина просп.

Детальніше...

16 000 $

28.04.24

321

Кількість кімнат: 2

Поверх/поверховість: 4/5

S загаль/житл/кух: 42/-/-

Розташування: Харьков, ХТЗ, Пролетарская метро (Индустриальная)

Детальніше...

14 500 $

24.05.24

303

Кількість кімнат: 2

Поверх/поверховість: 1/2

S загаль/житл/кух: 57/-/-

Розташування: Харьков, ХТЗ, Академика Подгорного ул.

Детальніше...

19 000 $

02.07.24

310

Кількість кімнат: 2

Поверх/поверховість: 4/4

S загаль/житл/кух: 40/28/7

Розташування: Харьков, ХТЗ, 12-го Апреля

Детальніше...

19 000 $

28.11.24

296

Кількість кімнат: 2

Поверх/поверховість: 4/5

S загаль/житл/кух: 45/-/-

Розташування: Харьков, ХТЗ, Франтишека Крала, ХТЗ метро

Детальніше...

18 000 $

15.12.24

251

Кількість кімнат: 2

Поверх/поверховість: 5/5

S загаль/житл/кух: 45/30/6

Розташування: Харьков, ХТЗ, Индустриальный просп.

Детальніше...

19 000 $

19.12.24

256

Кількість кімнат: 2

Поверх/поверховість: 5/5

S загаль/житл/кух: 46/-/-

Розташування: Харьков, ХТЗ, Франтишека Крала

Детальніше...

19 000 $

22.05.25

166

Кількість кімнат: 2

Поверх/поверховість: 4/4

S загаль/житл/кух: 44/28/6

Розташування: Харьков, ХТЗ, Генерала Момота ул., 25 больница

Детальніше...