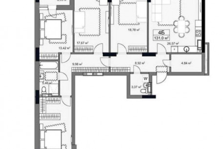
Продаж 4-кімнатної квартири, площею 131 кв. м на вул. Данилевського в ЖК Yard. Сучасне планування площею - 131 м² створене спеціально для комфорту і затишку. Квартира розташована на типовому поверсі 6-и поверхового будинку. Заселитися в нове житло можна після заявленої дати здачі - 3 квартал 2024 року. Забудовник - Авантаж.
 
	 
	 
						 
						 
						 
						 
						 
						 
						 
						 
						 
							