Відгуки про АН Город:

Відгуки про АН Город Дивитися всі Додати відгук

Відео відгуки про нас:

Відео відгуки про нас Дивитися всі
Заявка на продаж або оренду нерухомості Написати листа Замовити дзвінок

Продам 2-х кімнатну квартиру в новобудові, Алексеевка, Код: 751286/2

Розташування: Харьков, Алексеевка, Победы пр. Дивитися на мапі

334

16.04.24

Заявка на перегляд Замовити дзвінок Запропонувати свою ціну Поскаржитися

Контактні дані

0

Олександра Михайлівна

(050) ххх-хх-хх

Показати

Номер об'єкта: 751286/2

55 000 $

ГРН USD

Ціна 1 100 $ / м2

Кількість кімнат: 2

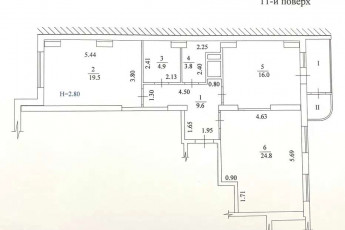
Поверх/поверховість: 7/15

S загаль/житл/кух: 50/32/12

Розташування: Харьков, Алексеевка, Победы пр.

Опис:

Продам 2-кімнатну квартиру в житловому комплексі Олексіївський. 7-й поверх 15-поверхового будинку. Стелі 3 метри. Відмінний комплекс, в дуже зручному місці! Все необхідне в 5 хвилинах ходьби від будинку: супермаркети, метро, дитяча поліклініка, аптека, дитячий садок. З ремонтом, зробленим 3 роки тому. Площа : 1 кімната -18,5 кв. м. кімната 13,5 кв. м. Кухня 12 м.кв. Ванна 5 м.кв. +балкон Повністю укомплектована меблями і технікою ! Індукційна варильна поверхня, духова шафа, кондиціонер, посудомийна машина тощо. У ванній кімнаті іспанська плитка, ванна Ravak. У ванній кімнаті, кухні та великій кімнаті тепла водяна підлога з усіма документами та фотографіями, зробленими на етапі ремонту ... Підвісні стелі по всій квартирі! У кімнатах на підлозі ламінат, у ванній кімнаті, коридорі, кухні - плитка. Планування квартири дозволяє тривалий час перебувати на кухні та коридорі за несучими стінами під час повітряної тривоги. На кухні немає вікон, але є дуже потужна витяжка! Це дуже зручно в ситуації, що склалася!

Заявка на перегляд Замовити дзвінок Запропонувати свою ціну Поскаржитися

Контактні дані

0

Олександра Михайлівна

(050) ххх-хх-хх

Показати

Подібні пропозиції:

55 000 $

29.07.23

644

Кількість кімнат: 2

Поверх/поверховість: 8/9

S загаль/житл/кух: 57/29/10

Розташування: Харьков, Алексеевка, Победы пр., ЖК Победа

Детальніше...

55 000 $

12.08.23

384

Кількість кімнат: 2

Поверх/поверховість: 8/9

S загаль/житл/кух: 57/29/-

Розташування: Харьков, Алексеевка, Победы пр.

Детальніше...

57 800 $

02.09.23

390

Кількість кімнат: 2

Поверх/поверховість: 3/9

S загаль/житл/кух: 47/26/12

Розташування: Харьков, Алексеевка, Победы пр.

Детальніше...

52 000 $

16.02.24

370

Кількість кімнат: 2

Поверх/поверховість: 15/15

S загаль/житл/кух: 53/-/-

Розташування: Харьков, Алексеевка, Победы пр., Победа метро

Детальніше...

55 000 $

12.10.24

344

Кількість кімнат: 2

Поверх/поверховість: 11/18

S загаль/житл/кух: 82/-/-

Розташування: Харьков, Алексеевка, Победы пр., Победа метро

Детальніше...

56 000 $

14.04.24

399

Кількість кімнат: 2

Поверх/поверховість: 7/9

S загаль/житл/кух: 68/-/-

Розташування: Харьков, Алексеевка, Победы пр., Победа метро

Детальніше...

55 000 $

23.04.24

334

Кількість кімнат: 2

Поверх/поверховість: 4/9

S загаль/житл/кух: 56/-/-

Розташування: Харьков, Алексеевка, Домостроительная ул., Победа метро

Детальніше...

55 000 $

26.06.24

305

Кількість кімнат: 2

Поверх/поверховість: 9/10

S загаль/житл/кух: 116/-/-

Розташування: Харьков, Алексеевка, Белогорская, Алексеевская метро

Детальніше...

52 000 $

19.08.24

305

Кількість кімнат: 2

Поверх/поверховість: 14/16

S загаль/житл/кух: 58/-/-

Розташування: Харьков, Алексеевка, Победы пр., Победа метро

Детальніше...

52 000 $

19.10.24

274

Кількість кімнат: 2

Поверх/поверховість: 12/20

S загаль/житл/кух: 50/-/-

Розташування: Харьков, Алексеевка, Целиноградская ул., Алексеевская метро

Детальніше...

55 000 $

02.12.24

262

Кількість кімнат: 2

Поверх/поверховість: 8/25

S загаль/житл/кух: 60/-/-

Розташування: Харьков, Алексеевка, Клочковская ул. (Алексеевка)

Детальніше...

57 000 $

13.03.25

239

Кількість кімнат: 2

Поверх/поверховість: 6/9

S загаль/житл/кух: 69/-/13

Розташування: Харьков, Алексеевка, Победы пр.

Детальніше...