Відгуки про АН Город:

Відгуки про АН Город Дивитися всі Додати відгук

Відео відгуки про нас:

Відео відгуки про нас Дивитися всі
Заявка на продаж або оренду нерухомості Написати листа Замовити дзвінок

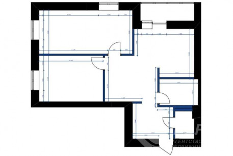
Продам 2-х кімнатну квартиру в новобудові, ХТЗ, ХТЗ метро, Код: 805976/1

Розташування: Харьков, ХТЗ, Героев Харькова пр. (ХТЗ), ХТЗ метро Дивитися на мапі

425

28.12.24

Заявка на перегляд Замовити дзвінок Запропонувати свою ціну Поскаржитися

Контактні дані

0

Ольга Леонидовна

(096) ххх-хх-хх

(093) ххх-хх-хх

Показати

Номер об'єкта: 805976/1

35 000 $

ГРН USD

Ціна 479 $ / м2

Кількість кімнат: 2

Поверх/поверховість: 8/9

S загаль/житл/кух: 73/-/-

Розташування: Харьков, ХТЗ, Героев Харькова пр. (ХТЗ), ХТЗ метро

Опис:

У продажу 2-кімнатна квартира в ЖК "Миру 3". Поверх 8, вікна у двір. Будинок зданий, присвоєно адресу вул. Героїв Харкова. Комунікації підключать до літа 2024. Квартира S=73,13м2 в будівельному стані: вхідні двері, міжкімнатні перегородки (перепланована!!!) метало-пластикові вікна, горизонтальна система опалення, радіатори, стояки каналізації та водопостачання. Є можливість встановити прилади обліку опалення та води на квартиру. Упорядкована територія, дитячі та спортивні майданчики, місткий наземний паркінг. У безпосередній близькості дошкільні та загальноосвітні заклади, ринок, торгові центри, авто- та залізничні станції, зупинка наземного транспорту. До станції метро "Індустріальна" або "Тракторний завод" 10 хвилин пішки.

Заявка на перегляд Замовити дзвінок Запропонувати свою ціну Поскаржитися

Контактні дані

0

Ольга Леонидовна

(096) ххх-хх-хх

(093) ххх-хх-хх

Показати

Подібні пропозиції:

36 000 $

09.04.25

516

Кількість кімнат: 2

Поверх/поверховість: 6/9

S загаль/житл/кух: 67/-/-

Розташування: Харьков, ХТЗ, Героев Харькова пр. (ХТЗ), ХТЗ метро

Детальніше...

35 000 $

08.10.23

471

Кількість кімнат: 2

Поверх/поверховість: 3/9

S загаль/житл/кух: 57/35/9

Розташування: Харьков, ХТЗ, Мира ул., ХТЗ метро

Детальніше...

37 000 $

05.11.23

473

Кількість кімнат: 2

Поверх/поверховість: 3/9

S загаль/житл/кух: 51/-/-

Розташування: Харьков, ХТЗ, Мира ул., ХТЗ метро

Детальніше...

36 000 $

04.06.25

400

Кількість кімнат: 2

Поверх/поверховість: 3/9

S загаль/житл/кух: 67/-/-

Розташування: Харьков, ХТЗ, Мира ул., ХТЗ метро

Детальніше...

35 500 $

29.04.24

329

Кількість кімнат: 2

Поверх/поверховість: 7/9

S загаль/житл/кух: 68/-/-

Розташування: Харьков, ХТЗ, Героев Харькова пр. (ХТЗ), ХТЗ метро

Детальніше...

38 000 $

05.08.24

279

Кількість кімнат: 2

Поверх/поверховість: 1/9

S загаль/житл/кух: 39/-/-

Розташування: Харьков, ХТЗ, Мира ул., ХТЗ метро

Детальніше...

32 000 $

22.02.26

273

Кількість кімнат: 2

Поверх/поверховість: 9/9

S загаль/житл/кух: 56/-/-

Розташування: Харьков, ХТЗ, Мира ул., ХТЗ метро

Детальніше...

38 000 $

31.03.26

92

Кількість кімнат: 2

Поверх/поверховість: 4/9

S загаль/житл/кух: 58/-/-

Розташування: Харьков, ХТЗ, Мира ул., ХТЗ метро

Детальніше...

35 000 $

23.04.26

47

Кількість кімнат: 2

Поверх/поверховість: 7/9

S загаль/житл/кух: 57/-/-

Розташування: Харьков, ХТЗ, Мира ул., ХТЗ метро

Детальніше...