Відгуки про АН Город:

Відгуки про АН Город Дивитися всі Додати відгук

Відео відгуки про нас:

Відео відгуки про нас Дивитися всі
Заявка на продаж або оренду нерухомості Написати листа Замовити дзвінок

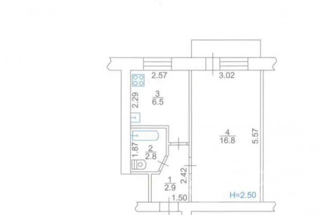
Продам 1-кімнатну квартиру, ХТЗ, Код: 804815/1

Розташування: Харьков, ХТЗ, 12-го Апреля Дивитися на мапі

172

08.12.23

Заявка на перегляд Замовити дзвінок Запропонувати свою ціну Поскаржитися

Контактні дані

0

Елена Николаевна

(099) ххх-хх-хх

(068) ххх-хх-хх

Показати

Номер об'єкта: 804815/1

16 500 $

ГРН USD

Ціна 569 $ / м2

Кількість кімнат: 1

Поверх/поверховість: 2/5

S загаль/житл/кух: 29/-/-

Розташування: Харьков, ХТЗ, 12-го Апреля

Опис:

Продається однокімнатна квартира на ХТЗ по вулиці 12 Квітня. Загальна площа 29,7 кв. м. Квартира під ремонт.

Заявка на перегляд Замовити дзвінок Запропонувати свою ціну Поскаржитися

Контактні дані

0

Елена Николаевна

(099) ххх-хх-хх

(068) ххх-хх-хх

Показати

Подібні пропозиції:

18 500 $

26.05.23

1058

Кількість кімнат: 1

Поверх/поверховість: 2/2

S загаль/житл/кух: 30/17/5

Розташування: Харьков, ХТЗ, Багратиона

Детальніше...

17 950 $

18.05.23

619

Кількість кімнат: 1

Поверх/поверховість: 2/5

S загаль/житл/кух: 19/9/3

Розташування: Харьков, ХТЗ, Каркача Ивана бульв., Пролетарская метро (Индустриальная)

Детальніше...

13 500 $

26.01.23

677

Кількість кімнат: 1

Поверх/поверховість: 1/4

S загаль/житл/кух: 20/20/2

Розташування: Харьков, ХТЗ, Мира ул.

Детальніше...

18 500 $

23.02.23

618

Кількість кімнат: 1

Поверх/поверховість: 7/9

S загаль/житл/кух: 38/19/6

Розташування: Харьков, ХТЗ, Каркача Ивана бульв.

Детальніше...

14 000 $

10.02.23

611

Кількість кімнат: 1

Поверх/поверховість: 1/3

S загаль/житл/кух: 14/-/-

Розташування: Харьков, ХТЗ, Маршала Рыбалко ул. (ХТЗ), Масельского метро

Детальніше...

18 000 $

15.02.23

620

Кількість кімнат: 1

Поверх/поверховість: 8/9

S загаль/житл/кух: 27/13/7

Розташування: Харьков, ХТЗ, Героев Харькова пр. (ХТЗ)

Детальніше...

16 000 $

30.03.23

634

Кількість кімнат: 1

Поверх/поверховість: 2/5

S загаль/житл/кух: 20/-/-

Розташування: Харьков, ХТЗ, Косарева ул.

Детальніше...

17 000 $

27.02.23

660

Кількість кімнат: 1

Поверх/поверховість: 1/5

S загаль/житл/кух: 21/-/-

Розташування: Харьков, ХТЗ, Северный пер., Масельского метро

Детальніше...

15 500 $

26.05.23

654

Кількість кімнат: 1

Поверх/поверховість: 1/5

S загаль/житл/кух: 22/-/13

Розташування: Харьков, ХТЗ, Северный пер., Масельского метро

Детальніше...

15 000 $

26.05.23

664

Кількість кімнат: 1

Поверх/поверховість: 1/5

S загаль/житл/кух: 22/13/3

Розташування: Харьков, ХТЗ, Северный пер., Масельского метро

Детальніше...

17 500 $

19.04.23

554

Кількість кімнат: 1

Поверх/поверховість: 3/5

S загаль/житл/кух: 30/19/6

Розташування: Харьков, ХТЗ, Душкина ул.

Детальніше...

19 000 $

28.08.23

412

Кількість кімнат: 1

Поверх/поверховість: 5/5

S загаль/житл/кух: 32/-/-

Розташування: Харьков, ХТЗ, Александровский просп.

Детальніше...