Відгуки про АН Город:

Відгуки про АН Город Дивитися всі Додати відгук

Відео відгуки про нас:

Відео відгуки про нас Дивитися всі
Заявка на продаж або оренду нерухомості Написати листа Замовити дзвінок

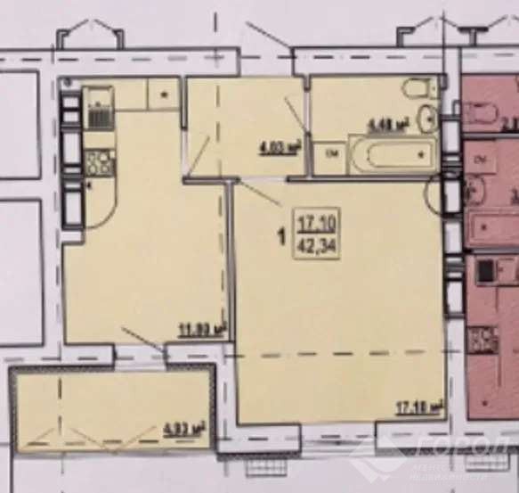
Продам 1-кімнатну квартиру в новобудові, Журавлевка, Киевская метро, Код: 804645/1

Розташування: Харьков, Журавлевка, Шевченко ул. (Журавлевка), Киевская метро Дивитися на мапі

272

01.12.23

Заявка на перегляд Замовити дзвінок Запропонувати свою ціну Поскаржитися

Контактні дані

0

(099) ххх-хх-хх

Показати

Номер об'єкта: 804645/1

26 000 $

ГРН USD

Ціна 619 $ / м2

Кількість кімнат: 1

Поверх/поверховість: 12/16

S загаль/житл/кух: 42/-/-

Розташування: Харьков, Журавлевка, Шевченко ул. (Журавлевка), Киевская метро

Опис:

Продам видову квартиру в житловому комплексі Гідропарк. 12 поверх з 16. Загальна площа 42,3 кв.м. Будинок зданий, сусіди роблять ремонт. Квартира з шикарним видом. Обладнана лічильником тепла. Квартира в будівельному стані. Будинок цегляний, утеплений мінеральною ватою 100 мм. Показ квартири за домовленістю в будь-який час.

Заявка на перегляд Замовити дзвінок Запропонувати свою ціну Поскаржитися

Контактні дані

0

(099) ххх-хх-хх

Показати

Подібні пропозиції:

23 900 $

09.03.23

543

Кількість кімнат: 1

Поверх/поверховість: 11/16

S загаль/житл/кух: 43/-/12

Розташування: Харьков, Журавлевка, Шевченко ул. (Журавлевка)

Детальніше...

26 000 $

08.01.24

549

Кількість кімнат: 1

Поверх/поверховість: 1/14

S загаль/житл/кух: 30/17/12

Розташування: Харьков, Журавлевка, Новоалександровская

Детальніше...

25 000 $

05.05.23

419

Кількість кімнат: 1

Поверх/поверховість: 8/9

S загаль/житл/кух: 40/26/12

Розташування: Харьков, Журавлевка, Шевченко ул. (Журавлевка), Киевская метро

Детальніше...

26 000 $

14.06.23

401

Кількість кімнат: 1

Поверх/поверховість: 8/13

S загаль/житл/кух: 36/19/6

Розташування: Харьков, Журавлевка, Новоалександровская

Детальніше...

24 000 $

29.01.23

492

Кількість кімнат: 1

Поверх/поверховість: 1/9

S загаль/житл/кух: 37/19/6

Розташування: Харьков, Журавлевка, Шевченко ул. (Журавлевка)

Детальніше...

26 000 $

02.02.23

472

Кількість кімнат: 1

Поверх/поверховість: 14/16

S загаль/житл/кух: 43/-/12

Розташування: Харьков, Журавлевка

Детальніше...

25 000 $

03.02.23

443

Кількість кімнат: 1

Поверх/поверховість: 8/9

S загаль/житл/кух: 41/17/9

Розташування: Харьков, Журавлевка, Шевченко ул. (Журавлевка), Киевская метро

Детальніше...

23 600 $

04.09.23

476

Кількість кімнат: 1

Поверх/поверховість: 9/16

S загаль/житл/кух: 43/-/-

Розташування: Харьков, Журавлевка, Борткевича ул., ЖК Гидропарк

Детальніше...

25 000 $

20.02.23

408

Кількість кімнат: 1

Поверх/поверховість: 5/9

S загаль/житл/кух: 37/-/-

Розташування: Харьков, Журавлевка, Шевченко ул. (Журавлевка)

Детальніше...

23 000 $

14.03.23

484

Кількість кімнат: 1

Поверх/поверховість: 14/16

S загаль/житл/кух: 43/-/-

Розташування: Харьков, Журавлевка, Шевченко ул. (Журавлевка), ЖК Гидропарк

Детальніше...

26 000 $

20.03.23

360

Кількість кімнат: 1

Поверх/поверховість: 7/9

S загаль/житл/кух: 40/-/-

Розташування: Харьков, Журавлевка, Шевченко ул. (Журавлевка)

Детальніше...

23 000 $

24.03.23

280

Кількість кімнат: 1

Поверх/поверховість: 6/16

S загаль/житл/кух: 42/17/11

Розташування: Харьков, Журавлевка, Шевченко ул. (Журавлевка)

Детальніше...