Відгуки про АН Город:

Відгуки про АН Город Дивитися всі Додати відгук

Відео відгуки про нас:

Відео відгуки про нас Дивитися всі
Заявка на продаж або оренду нерухомості Написати листа Замовити дзвінок

Продам 1-кімнатну квартиру в новобудові, Северная Салтовка, Код: 804359/1

Розташування: Харьков, Северная Салтовка, Родниковая ул. Дивитися на мапі

528

20.01.25

Заявка на перегляд Замовити дзвінок Запропонувати свою ціну Поскаржитися

Контактні дані

0

(099) ххх-хх-хх

Показати

Номер об'єкта: 804359/1

30 000 $

ГРН USD

Ціна 577 $ / м2

Кількість кімнат: 1

Поверх/поверховість: 6/17

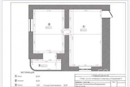
S загаль/житл/кух: 52/-/-

Розташування: Харьков, Северная Салтовка, Родниковая ул.

Опис:

Продам 1-кімнатну квартиру в новобудові по вул. Джерельна. Площа - 52 кв.м., перепланована в 2-кімнатну. У квартирі виконані практично всі чорнові роботи: електрика, сантехніка, опалення, штукатурка і стяжка. Стоїть лічильник на тепло, стоять нові вхідні двері. Ремонт із якісних матеріалів. Територія будинку закрита стоять автоматичні ворота, камери.

Заявка на перегляд Замовити дзвінок Запропонувати свою ціну Поскаржитися

Контактні дані

0

(099) ххх-хх-хх

Показати

Подібні пропозиції:

28 600 $

11.03.23

358

Кількість кімнат: 1

Поверх/поверховість: 5/13

S загаль/житл/кух: 45/-/-

Розташування: Харьков, Северная Салтовка, Гвардейцев Широнинцев ул. (Северная Салтовка)

Детальніше...

27 400 $

29.04.24

323

Кількість кімнат: 1

Поверх/поверховість: 1/19

S загаль/житл/кух: 45/-/-

Розташування: Харьков, Северная Салтовка, Гвардейцев Широнинцев ул. (Северная Салтовка), Меридиан ЖК

Детальніше...

30 000 $

18.05.24

299

Кількість кімнат: 1

Поверх/поверховість: 17/17

S загаль/житл/кух: 53/-/-

Розташування: Харьков, Северная Салтовка, Родниковая ул., Северная Салтовка 1

Детальніше...

31 900 $

19.04.26

125

Кількість кімнат: 1

Поверх/поверховість: 13/17

S загаль/житл/кух: 55/27/16

Розташування: Харьков, Северная Салтовка, Родниковая ул., Северная Салтовка 1

Детальніше...

28 000 $

20.01.26

101

Кількість кімнат: 1

Поверх/поверховість: 5/13

S загаль/житл/кух: 43/-/-

Розташування: Харьков, Северная Салтовка, Гвардейцев Широнинцев ул. (Северная Салтовка), Меридиан ЖК

Детальніше...