Відгуки про АН Город:

Відгуки про АН Город Дивитися всі Додати відгук

Відео відгуки про нас:

Відео відгуки про нас Дивитися всі
Заявка на продаж або оренду нерухомості Написати листа Замовити дзвінок

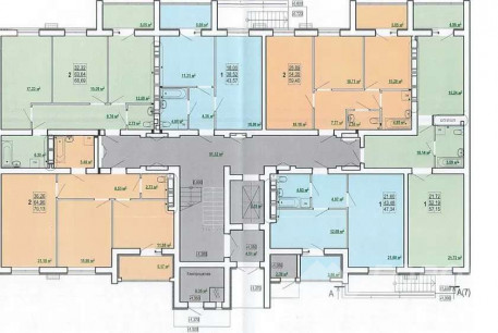
Продам 2-х кімнатну квартиру в новобудові, Алексеевка, Победа метро, Код: 802935/1

Розташування: Харьков, Алексеевка, Победы пр., Победа метро Дивитися на мапі

377

21.09.23

Заявка на перегляд Замовити дзвінок Запропонувати свою ціну Поскаржитися

Контактні дані

0

Маргарита Юрьевна

(099) ххх-хх-хх

Показати

Номер об'єкта: 802935/1

65 000 $

ГРН USD

Ціна 985 $ / м2

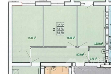
Кількість кімнат: 2

Поверх/поверховість: 9/9

S загаль/житл/кух: 66/32/12

Розташування: Харьков, Алексеевка, Победы пр., Победа метро

Опис:

Продам 2-кімнатну квартиру, площею 66 кв.м. з видом на ліс. БУДИНОК ЗДАНИЙ, присвоєна адреса, можна одразу приступати до ремонту. Квартира на 9 поверсі, 9 поверхового будинку. Будівельний стан - встановлені МПО, радіатори опалення, металеві вхідні двері. Майже всі перегородки всередині квартири не несучі - за бажання квартиру можна перепланувати на свій розсуд. У квартирі горизонтальна розводка опалення - можна і потрібно встановити індивідуальний лічильник тепла на квартиру, Чудове місце розташування - поруч ліс і водночас до центру міста - 15 хвилин на авто. Недалеко супермаркети, школи, дитячі садки. Біля будинку дитячі та спортивні майданчики.

Заявка на перегляд Замовити дзвінок Запропонувати свою ціну Поскаржитися

Контактні дані

0

Маргарита Юрьевна

(099) ххх-хх-хх

Показати

Подібні пропозиції:

65 000 $

22.02.23

541

Кількість кімнат: 2

Поверх/поверховість: 2/16

S загаль/житл/кух: 60/31/10

Розташування: Харьков, Алексеевка, Победы пр.

Детальніше...

65 000 $

02.03.23

494

Кількість кімнат: 2

Поверх/поверховість: 18/20

S загаль/житл/кух: 51/-/-

Розташування: Харьков, Алексеевка, Целиноградская ул., Алексеевская метро

Детальніше...

62 000 $

05.09.23

365

Кількість кімнат: 2

Поверх/поверховість: 1/15

S загаль/житл/кух: 74/32/11

Розташування: Харьков, Алексеевка, Победы пр., Победа метро

Детальніше...

67 000 $

06.10.23

406

Кількість кімнат: 2

Поверх/поверховість: 3/6

S загаль/житл/кух: 56/-/-

Розташування: Харьков, Алексеевка, Домостроительная ул.

Детальніше...

65 000 $

30.01.24

361

Кількість кімнат: 2

Поверх/поверховість: 11/15

S загаль/житл/кух: 72/28/12

Розташування: Харьков, Алексеевка, Победы пр., Победа метро

Детальніше...

67 000 $

09.10.24

285

Кількість кімнат: 2

Поверх/поверховість: 12/16

S загаль/житл/кух: 83/40/16

Розташування: Харьков, Алексеевка, Целиноградская ул.

Детальніше...

68 000 $

17.07.24

284

Кількість кімнат: 2

Поверх/поверховість: 3/6

S загаль/житл/кух: 75/-/-

Розташування: Харьков, Алексеевка, Домостроительная ул.

Детальніше...

63 500 $

15.08.24

278

Кількість кімнат: 2

Поверх/поверховість: 5/18

S загаль/житл/кух: 56/-/-

Розташування: Харьков, Алексеевка, Победы пр., Победа метро

Детальніше...

65 000 $

13.08.25

142

Кількість кімнат: 2

Поверх/поверховість: 5/10

S загаль/житл/кух: 77/-/-

Розташування: Харьков, Алексеевка, Победы пр., Алексеевская метро

Детальніше...

65 000 $

31.08.25

126

Кількість кімнат: 2

Поверх/поверховість: 6/9

S загаль/житл/кух: 66/33/12

Розташування: Харьков, Алексеевка, Победы пр.

Детальніше...

62 500 $

15.11.25

137

Кількість кімнат: 2

Поверх/поверховість: 4/9

S загаль/житл/кух: 67/-/-

Розташування: Харьков, Алексеевка, Победы пр.

Детальніше...