Відгуки про АН Город:

Відгуки про АН Город Дивитися всі Додати відгук

Відео відгуки про нас:

Відео відгуки про нас Дивитися всі
Заявка на продаж або оренду нерухомості Написати листа Замовити дзвінок

Продам 2-х кімнатну квартиру в новобудові, Павлово поле, Код: 730535/2

Розташування: Харьков, Павлово поле, Новгородская Дивитися на мапі

366

26.07.23

Заявка на перегляд Замовити дзвінок Запропонувати свою ціну Поскаржитися

Контактні дані

0

Евгений Дмитриевич

(096) ххх-хх-хх

Показати

Номер об'єкта: 730535/2

105 300 $

ГРН USD

Ціна 2 065 $ / м2

Кількість кімнат: 2

Поверх/поверховість: 8/9

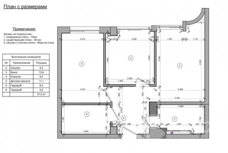
S загаль/житл/кух: 51/25/13

Розташування: Харьков, Павлово поле, Новгородская

Опис:

У продажу видова 2-кімнатна квартира в ЖК Резиденція. Загальна площа - 51 м2. Квартира без ремонту. Планування: спальня, дитяча, кухня, гардеробна. Панорамні вікна. Також є 2 паркомісця в підземному паркінгу на продаж. 8-й поверх з видом у бік парку Горького, шикарний вид. Парк Горького, Саржин Яр, метро Ботанічний сад, Центр міста в пішій доступності. Поруч садки і школи. Розпочато ремонт, зведені й поштукатурені стіни, закуплено повністю дорогу плитку на підлогу і на стіни, куплено паркетну дошку з підкладкою, вхідні двері, радіатори опалення. Зроблено розводку опалення. Усе купувалося за проєктом як на фото.

Заявка на перегляд Замовити дзвінок Запропонувати свою ціну Поскаржитися

Контактні дані

0

Евгений Дмитриевич

(096) ххх-хх-хх

Показати

Подібні пропозиції:

105 000 $

25.04.23

681

Кількість кімнат: 2

Поверх/поверховість: 6/10

S загаль/житл/кух: 65/41/9

Розташування: Харьков, Сосновая Горка, Серповая ул., Научная метро

Детальніше...

103 000 $

25.01.23

453

Кількість кімнат: 2

Поверх/поверховість: 12/16

S загаль/житл/кух: 80/-/-

Розташування: Харьков, Центр, Ботанический пер., Университет метро

Детальніше...

105 000 $

15.03.23

390

Кількість кімнат: 2

Поверх/поверховість: 6/17

S загаль/житл/кух: 50/17/20

Розташування: Харьков, Сосновая Горка, Минская

Детальніше...

105 000 $

20.03.23

434

Кількість кімнат: 2

Поверх/поверховість: 11/19

S загаль/житл/кух: 48/35/25

Розташування: Харьков, Новые дома, Маршала Жукова метро (Дворец спорта)

Детальніше...

105 000 $

15.06.23

378

Кількість кімнат: 2

Поверх/поверховість: 14/16

S загаль/житл/кух: 72/-/-

Розташування: Харьков, Центральный рынок, Рогатинский проезд, Центральный Рынок метро

Детальніше...

105 000 $

17.08.23

341

Кількість кімнат: 2

Поверх/поверховість: 2/18

S загаль/житл/кух: 80/-/-

Розташування: Харьков, Алексеевка, Победы пр., Победа метро

Детальніше...

107 000 $

15.10.23

354

Кількість кімнат: 2

Поверх/поверховість: 4/6

S загаль/житл/кух: 87/-/-

Розташування: Харьков, Салтовский, Героев Харькова пр. (Салтовский), Завод им. Малышева метро

Детальніше...

105 000 $

24.07.25

320

Кількість кімнат: 2

Поверх/поверховість: 14/21

S загаль/житл/кух: 78/-/-

Розташування: Харьков, Сосновая Горка, Клочковская ул. (Сосновая Горка), Научная метро

Детальніше...

103 000 $

08.12.24

316

Кількість кімнат: 2

Поверх/поверховість: 14/16

S загаль/житл/кух: 70/-/-

Розташування: Харьков, Павлово поле, Профессорская

Детальніше...

105 000 $

14.01.24

301

Кількість кімнат: 2

Поверх/поверховість: 8/13

S загаль/житл/кух: 72/-/-

Розташування: Харьков, Сосновая Горка, Ляпунова ул., Научная метро

Детальніше...

105 000 $

06.02.24

311

Кількість кімнат: 2

Поверх/поверховість: 14/16

S загаль/житл/кух: 70/-/-

Розташування: Харьков, Павлово поле, Профессорская, Сокольники

Детальніше...

105 000 $

06.02.26

274

Кількість кімнат: 2

Поверх/поверховість: 7/8

S загаль/житл/кух: 82/-/-

Розташування: Харьков, Центр, Сумская ул., Площадь Конституции метро (Советская)

Детальніше...