Відгуки про АН Город:

Відгуки про АН Город Дивитися всі Додати відгук

Відео відгуки про нас:

Відео відгуки про нас Дивитися всі
Заявка на продаж або оренду нерухомості Написати листа Замовити дзвінок

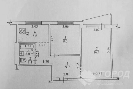
Продам 2-х кімнатну квартиру, Рогань, Код: 801432/1

Розташування: Харьков, Рогань Дивитися на мапі

375

20.07.23

Заявка на перегляд Замовити дзвінок Запропонувати свою ціну Поскаржитися

Контактні дані

0

(099) ххх-хх-хх

Показати

Номер об'єкта: 801432/1

25 500 $

ГРН USD

Ціна 567 $ / м2

Кількість кімнат: 2

Поверх/поверховість: 9/9

S загаль/житл/кух: 45/-/-

Розташування: Харьков, Рогань

Опис:

Продам 2-кімнатну квартиру в районі Горизонту в житловому стані. Була підготовлена під ремонт до війни. 9/9 поверх,1 балкон засклений, на кухні витяжка, нова газова плита, холодильник, є бойлер, лічильники гарячої та холодної води. Дах відремонтовано у 2021 р. два рази (спочатку перекрито новим руберойдом, потім зробив ремонт жек). Гарний житловий стан, є тамбур особистий, є можливість зробити комору в порожній шахті ліфта гарний двір і транспортна розв'язка. свіжі документи з БТІ зроблено влітку 2021р прильотів в під'їзд не було.

Заявка на перегляд Замовити дзвінок Запропонувати свою ціну Поскаржитися

Контактні дані

0

(099) ххх-хх-хх

Показати

Подібні пропозиції:

25 000 $

26.02.23

606

Кількість кімнат: 2

Поверх/поверховість: 8/9

S загаль/житл/кух: 48/26/10

Розташування: Харьков, Рогань, Шариковая ул.

Детальніше...

24 500 $

29.01.23

446

Кількість кімнат: 2

Поверх/поверховість: 8/9

S загаль/житл/кух: 44/28/7

Розташування: Харьков, Рогань, Зубарева

Детальніше...

27 900 $

05.02.23

428

Кількість кімнат: 2

Поверх/поверховість: 6/9

S загаль/житл/кух: 44/-/-

Розташування: Харьков, Рогань, Шариковая ул.

Детальніше...

25 000 $

25.11.23

467

Кількість кімнат: 2

Поверх/поверховість: 1/9

S загаль/житл/кух: 45/-/-

Розташування: Харьков, Рогань, Зубарева

Детальніше...

25 600 $

02.05.23

439

Кількість кімнат: 2

Поверх/поверховість: 10/10

S загаль/житл/кух: 51/30/8

Розташування: Харьков, Рогань, Каркача Ивана пер.

Детальніше...

25 900 $

02.05.23

450

Кількість кімнат: 2

Поверх/поверховість: 2/9

S загаль/житл/кух: 48/26/8

Розташування: Харьков, Рогань, Плиточная ул.

Детальніше...

28 000 $

10.04.23

455

Кількість кімнат: 2

Поверх/поверховість: 11/16

S загаль/житл/кух: 53/-/8

Розташування: Харьков, Рогань, Луи Пастера ул.(Рогань), Роганский ж/м

Детальніше...

23 000 $

29.08.23

444

Кількість кімнат: 2

Поверх/поверховість: 1/9

S загаль/житл/кух: 45/27/7

Розташування: Харьков, Рогань, Грицевца ул., Горизонт

Детальніше...

28 000 $

27.06.23

449

Кількість кімнат: 2

Поверх/поверховість: 7/9

S загаль/житл/кух: 54/-/-

Розташування: Харьков, Рогань, Грицевца ул., Роганский ж/м

Детальніше...

23 000 $

30.08.23

412

Кількість кімнат: 2

Поверх/поверховість: 2/9

S загаль/житл/кух: 45/-/-

Розташування: Харьков, Рогань, Мохначанская ул., Восточный

Детальніше...

25 000 $

08.04.24

401

Кількість кімнат: 2

Поверх/поверховість: 1/9

S загаль/житл/кух: 54/31/7

Розташування: Харьков, Рогань, Грицевца бул.

Детальніше...

27 000 $

05.10.23

359

Кількість кімнат: 2

Поверх/поверховість: 1/9

S загаль/житл/кух: 52/32/6

Розташування: Харьков, Рогань, Большая Кольцевая, Горизонт

Детальніше...