Відгуки про АН Город:

Відгуки про АН Город Дивитися всі Додати відгук

Відео відгуки про нас:

Відео відгуки про нас Дивитися всі
Заявка на продаж або оренду нерухомості Написати листа Замовити дзвінок

Продам 2-х кімнатну квартиру, Алексеевка, Победа метро, Код: 801024/1

Розташування: Харьков, Алексеевка, Победы пр., Победа метро Дивитися на мапі

284

28.06.23

Заявка на перегляд Замовити дзвінок Запропонувати свою ціну Поскаржитися

Контактні дані

0

(099) ххх-хх-хх

Показати

Номер об'єкта: 801024/1

65 000 $

ГРН USD

Ціна 985 $ / м2

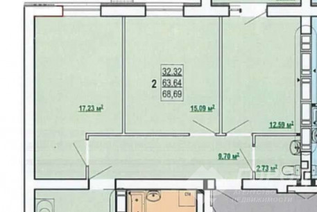
Кількість кімнат: 2

Поверх/поверховість: 9/9

S загаль/житл/кух: 66/-/-

Розташування: Харьков, Алексеевка, Победы пр., Победа метро

Опис:

У продажу 2-кімнатна квартира в ЖК Перемоги-2 на Олексіївці з видом на ліс. Загальна площа - 66м2. Будинок зданий, можна приступати до ремонту. Квартира на 9 поверсі 9-ти поверхового будинку. Будівельний стан - встановлені МПО, радіатори опалення, металеві вхідні двері. Майже всі перегородки всередині квартири не несучі - за бажання квартиру можна перепланувати на свій розсуд. У квартирі горизонтальна розводка опалення - можна встановити індивідуальний лічильник тепла на квартиру. Відмінне місцерозташування - поруч ліс і в той же час до центру міста - 15 хвилин на авто. Недалеко супермаркети, школи, дитячі садки. Біля будинку дитячі та спортивні майданчики.

Заявка на перегляд Замовити дзвінок Запропонувати свою ціну Поскаржитися

Контактні дані

0

(099) ххх-хх-хх

Показати

Подібні пропозиції:

62 000 $

06.09.23

495

Кількість кімнат: 2

Поверх/поверховість: 6/9

S загаль/житл/кух: 77/40/13

Розташування: Харьков, Северная Салтовка, Кричевского ул., МЖК

Детальніше...

65 500 $

22.03.23

595

Кількість кімнат: 2

Поверх/поверховість: 4/5

S загаль/житл/кух: 55/30/7

Розташування: Харьков, Центр, Университетская ул., Площадь Конституции метро (Советская)

Детальніше...

65 000 $

12.02.23

423

Кількість кімнат: 2

Поверх/поверховість: 5/5

S загаль/житл/кух: 65/-/15

Розташування: Харьков, Центр, Пушкинская ул. (Центр), Университет метро

Детальніше...

65 000 $

19.02.23

459

Кількість кімнат: 2

Поверх/поверховість: 2/5

S загаль/житл/кух: 65/26/15

Розташування: Харьков, Центр, Искусств ул.

Детальніше...

65 000 $

22.02.23

408

Кількість кімнат: 2

Поверх/поверховість: 1/5

S загаль/житл/кух: 59/-/-

Розташування: Харьков, Центр

Детальніше...

65 000 $

24.02.23

440

Кількість кімнат: 2

Поверх/поверховість: 2/5

S загаль/житл/кух: 100/-/-

Розташування: Харьков, Павлово поле, Есенина Сергея ул.

Детальніше...

63 000 $

25.02.23

400

Кількість кімнат: 2

Поверх/поверховість: 10/14

S загаль/житл/кух: 65/-/-

Розташування: Харьков, Холодная Гора

Детальніше...

68 000 $

08.10.23

487

Кількість кімнат: 2

Поверх/поверховість: 15/23

S загаль/житл/кух: 54/-/-

Розташування: Харьков, Павлово поле, Отакара Яроша ул., Ботанический сад метро

Детальніше...

63 000 $

09.03.23

462

Кількість кімнат: 2

Поверх/поверховість: 3/5

S загаль/житл/кух: 50/-/-

Розташування: Харьков, Центр, Короленко пер., Площадь Конституции метро (Советская)

Детальніше...

65 000 $

25.05.23

422

Кількість кімнат: 2

Поверх/поверховість: 10/10

S загаль/житл/кух: 60/26/23

Розташування: Харьков, Новые дома, Харьковских Дивизий ул.

Детальніше...

65 000 $

05.04.23

353

Кількість кімнат: 2

Поверх/поверховість: 1/5

S загаль/житл/кух: 59/45/7

Розташування: Харьков, Гагарина проспект, Шота Руставели пер., Защитников Украины метро (Площадь Восстания)

Детальніше...

65 000 $

26.04.23

441

Кількість кімнат: 2

Поверх/поверховість: 4/4

S загаль/житл/кух: 48/-/-

Розташування: Харьков, Центр, Мироносицкая ул.

Детальніше...