Відгуки про АН Город:

Відгуки про АН Город Дивитися всі Додати відгук

Відео відгуки про нас:

Відео відгуки про нас Дивитися всі
Заявка на продаж або оренду нерухомості Написати листа Замовити дзвінок

Продам 3-х кімнатну квартиру в новобудові, Новые дома, Маршала Жукова метро (Дворец спорта), Код: 799044/1

Розташування: Харьков, Новые дома, Льва Ландау просп. (Новые дома), Маршала Жукова метро (Дворец спорта) Дивитися на мапі

499

10.04.23

Заявка на перегляд Замовити дзвінок Запропонувати свою ціну Поскаржитися

Контактні дані

0

Елена Николаевна

(099) ххх-хх-хх

(068) ххх-хх-хх

Показати

Номер об'єкта: 799044/1

113 000 $

ГРН USD

Ціна 1 097 $ / м2

Кількість кімнат: 3

Поверх/поверховість: 5/10

S загаль/житл/кух: 103/65/15

Розташування: Харьков, Новые дома, Льва Ландау просп. (Новые дома), Маршала Жукова метро (Дворец спорта)

Опис:

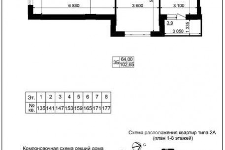
Продам 3-кімнатну квартиру, площею 104 м. кв. у новобудові ЖК Пролісок на чудовому поверсі з найцікавішим плануванням від всім відомого забудовника Житлобуд-2. Документи на квартиру на руках. У квартирі зроблено невелике узаконене перепланування, на плані не вказано (зрушено вхідні двері для можливості поставити вхідну групу зручно, окрема гардеробна кімната, можливість поставити пральню і господарське приміщення), зміщено вхід і виділено стіну під зону ТБ у вітальні, вирівняно стіни у спальнях по відношенню до колон. Стоять радіатори і вхідні двері. У квартирі 2 санвузли, горизонтальна розводка опалення з індивідуальним квартирним лічильником на тепло (ви самі регулюєте подачу тепла в квартиру). Лічильник встановлений, передаємо показання. Квартира НЕ суміжна з ліфтом і холодною зоною (сходами)! Будинок зданий, усі комунікації підключені. Лічильники на гарячу і холодну воду, ел/енергію. Була заміна вікон на класом вище і краще за характеристиками від Veka, заведений інтернет кабель. Будинок побудований за монолітно-каркасною технологією і відповідає найвищим стандартам безпеки та комфорту. У будинку і на території встановлено відеоспостереження, яке контролюється з поста консьєржем, домофон. Спальні світлі, великі. У дворі сучасні, продумані дитячі майданчики. Поруч гостьовий паркінг. Закрита територія ЖК. Зручне місцерозташування, транспортна розв'язка, метро 3 хв, басейн Аквалайф за 5 хв на авто, кінотеатр Київ, парк Юр'єва, Палац Спорту, школи, садочки, с/м Рост, АТБ, Клас, Сільпо, базар, банки, пошти, вся необхідна розвинена інфраструктура. Поруч із будинком гостьовий паркінг, на в'їздах у житловий масив стоять шлагбауми, територія в міру здачі майбутніх будинків огороджується парканом. Буде побудований критий паркінг на території житлового масиву.

Заявка на перегляд Замовити дзвінок Запропонувати свою ціну Поскаржитися

Контактні дані

0

Елена Николаевна

(099) ххх-хх-хх

(068) ххх-хх-хх

Показати

Подібні пропозиції:

110 000 $

18.03.26

837

Кількість кімнат: 3

Поверх/поверховість: 8/10

S загаль/житл/кух: 122/68/15

Розташування: Харьков, Новые дома, Героев Харькова пр. (Новые дома), Маршала Жукова метро (Дворец спорта)

Детальніше...

115 000 $

22.01.23

511

Кількість кімнат: 3

Поверх/поверховість: 8/10

S загаль/житл/кух: 109/-/15

Розташування: Харьков, Центральный рынок, Большая Панасовская ул. (ЦР), Южный вокзал метро

Детальніше...

115 000 $

12.12.23

522

Кількість кімнат: 3

Поверх/поверховість: 14/16

S загаль/житл/кух: 86/36/12

Розташування: Харьков, Гагарина проспект, Гагарина пр. (Гагарина Проспект), Спортивная метро

Детальніше...

110 000 $

12.02.23

486

Кількість кімнат: 3

Поверх/поверховість: 8/

S загаль/житл/кух: 110/-/-

Розташування: Харьков, Гагарина проспект, Молочная ул.

Детальніше...

115 000 $

15.02.23

393

Кількість кімнат: 3

Поверх/поверховість: 7/9

S загаль/житл/кух: 130/-/-

Розташування: Харьков, Центр, Университетская ул., Площадь Конституции метро (Советская)

Детальніше...

115 000 $

31.07.23

449

Кількість кімнат: 3

Поверх/поверховість: 14/17

S загаль/житл/кух: 70/29/19

Розташування: Харьков, Павлово поле, Отакара Яроша пер., Ботанический сад метро

Детальніше...

110 000 $

19.07.24

418

Кількість кімнат: 3

Поверх/поверховість: 4/9

S загаль/житл/кух: 128/-/-

Розташування: Харьков, Павлово поле, Науки просп. (Павлово Поле)

Детальніше...

112 000 $

22.09.23

442

Кількість кімнат: 3

Поверх/поверховість: 2/15

S загаль/житл/кух: 105/-/15

Розташування: Харьков, Салтовский, Героев Харькова пр. (Салтовский), Завод им. Малышева метро

Детальніше...

110 000 $

17.11.23

428

Кількість кімнат: 3

Поверх/поверховість: 5/9

S загаль/житл/кух: 114/-/-

Розташування: Харьков, Гагарина проспект, Героев Небесной Сотни пл., Проспект Гагарина метро

Детальніше...

115 000 $

27.12.23

419

Кількість кімнат: 3

Поверх/поверховість: 10/16

S загаль/житл/кух: 1000/-/-

Розташування: Харьков, Павлово поле, Профессорская, Сокольники

Детальніше...

110 000 $

27.04.24

324

Кількість кімнат: 3

Поверх/поверховість: 15/15

S загаль/житл/кух: 83/61/17

Розташування: Харьков, Центр, Ботанический пер., Исторический Музей метро

Детальніше...

115 000 $

26.11.24

234

Кількість кімнат: 3

Поверх/поверховість: 4/12

S загаль/житл/кух: 111/-/-

Розташування: Харьков, Центр, Клочковская ул. (Центр)

Детальніше...