Відгуки про АН Город:

Відгуки про АН Город Дивитися всі Додати відгук

Відео відгуки про нас:

Відео відгуки про нас Дивитися всі
Заявка на продаж або оренду нерухомості Написати листа Замовити дзвінок

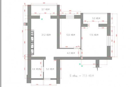
Продам 2-х кімнатну квартиру в новобудові, Центральный рынок, Центральный Рынок метро, Код: 760579/2

Розташування: Харьков, Центральный рынок, Рогатинский проезд, Центральный Рынок метро Дивитися на мапі

225

13.03.23

Заявка на перегляд Замовити дзвінок Запропонувати свою ціну Поскаржитися

Контактні дані

0

(099) ххх-хх-хх

Показати

Номер об'єкта: 760579/2

49 700 $

ГРН USD

Ціна 637 $ / м2

Кількість кімнат: 2

Поверх/поверховість: 9/16

S загаль/житл/кух: 78/-/-

Розташування: Харьков, Центральный рынок, Рогатинский проезд, Центральный Рынок метро

Опис:

Продам 2-х комнатную квартиру в Жк Рогатинский по адресу проезд Рогатинский. Общая площадь - 77.5 кв. м, выполнен частичный ремонт. Квартира в самом центре Харькова, в пешей доступности сад Шевченка, зоопарк, магазин рост, класс, рынок, школы, спортзалы и тд, метро 5 минут ! Полноценная двухкомнатная квартира + кухня гостиная Разведена проводка, частично оштукатурены стены, закуплена вся штукатурка, есть недорогой и качественный мастер, который готов все доделать, есть частичный дизайн проект. Установлен счётчик на тепло отос с точной регулировкой подачи. Дом сдан в эксплуатацию, снизу сверху лоджии у соседей застеклены лоджии, дом заселён, ремонты у соседей сделаны. Установлены самые качественные панорамные окна на лоджиях, rehau synego 80 с аргоном, энергией и тройной резинкой. В квартире все утеплено, отгорожен тамбур. Стоит счётчик на тепло и свет. Мусор из квартиры весь практически вывезен, стройматериалы идут в комплекте к квартире.

Заявка на перегляд Замовити дзвінок Запропонувати свою ціну Поскаржитися

Контактні дані

0

(099) ххх-хх-хх

Показати

Подібні пропозиції:

52 500 $

28.04.23

622

Кількість кімнат: 2

Поверх/поверховість: 4/9

S загаль/житл/кух: 45/27/15

Розташування: Харьков, Жуковского, Дача 55 ул.

Детальніше...

47 900 $

22.12.24

600

Кількість кімнат: 2

Поверх/поверховість: 7/9

S загаль/житл/кух: 73/50/25

Розташування: Харьков, Новые дома, Льва Ландау просп. (Новые дома), Маршала Жукова метро (Дворец спорта)

Детальніше...

50 000 $

22.01.23

419

Кількість кімнат: 2

Поверх/поверховість: 2/9

S загаль/житл/кух: 56/29/12

Розташування: Харьков, Салтовка, Барабашова ул., Академика Барабашова метро

Детальніше...

49 500 $

28.01.23

528

Кількість кімнат: 2

Поверх/поверховість: 2/10

S загаль/житл/кух: 64/26/13

Розташування: Харьков, Новые дома, Дворец спорта

Детальніше...

50 000 $

29.01.23

602

Кількість кімнат: 2

Поверх/поверховість: 9/14

S загаль/житл/кух: 75/26/21

Розташування: Харьков, Новые дома, Льва Ландау просп. (Новые дома), Маршала Жукова метро (Дворец спорта)

Детальніше...

52 000 $

29.01.23

481

Кількість кімнат: 2

Поверх/поверховість: 5/9

S загаль/житл/кух: 50/26/15

Розташування: Харьков, Новые дома, Льва Ландау просп. (Новые дома)

Детальніше...

49 000 $

02.02.23

476

Кількість кімнат: 2

Поверх/поверховість: 14/16

S загаль/житл/кух: 62/-/10

Розташування: Харьков, Салтовка, Героев Труда ул., ЖК Оазис

Детальніше...

50 000 $

02.02.23

503

Кількість кімнат: 2

Поверх/поверховість: 6/9

S загаль/житл/кух: 64/-/10

Розташування: Харьков, Холодная Гора, Полтавский Шлях ул. (Холодная Гора), Холодная Гора метро

Детальніше...

50 000 $

10.02.23

390

Кількість кімнат: 2

Поверх/поверховість: 25/25

S загаль/житл/кух: 65/-/-

Розташування: Харьков, Салтовка, Героев Труда ул., ЖК Оазис

Детальніше...

49 000 $

25.02.23

430

Кількість кімнат: 2

Поверх/поверховість: 8/16

S загаль/житл/кух: 55/-/-

Розташування: Харьков, Гагарина проспект, Елизаветинская, Проспект Гагарина метро

Детальніше...

50 000 $

28.02.23

323

Кількість кімнат: 2

Поверх/поверховість: 3/5

S загаль/житл/кух: 56/-/-

Розташування: Харьков, Журавлевка, Новоалександровская, Киевская метро

Детальніше...

50 000 $

16.03.23

450

Кількість кімнат: 2

Поверх/поверховість: 8/16

S загаль/житл/кух: 63/-/-

Розташування: Харьков, Гагарина проспект, Елизаветинская, Проспект Гагарина метро

Детальніше...