Відгуки про АН Город:

Відгуки про АН Город Дивитися всі Додати відгук

Відео відгуки про нас:

Відео відгуки про нас Дивитися всі
Заявка на продаж або оренду нерухомості Написати листа Замовити дзвінок

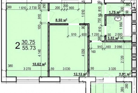
Продам 2-х кімнатну квартиру в новобудові, Салтовка, Академика Павлова метро, Код: 796491/1

Розташування: Харьков, Салтовка, Шевченковский пер., Академика Павлова метро Дивитися на мапі

467

27.01.23

Заявка на перегляд Замовити дзвінок Запропонувати свою ціну Поскаржитися

Контактні дані

0

(099) ххх-хх-хх

Показати

Номер об'єкта: 796491/1

35 000 $

ГРН USD

Ціна 625 $ / м2

Кількість кімнат: 2

Поверх/поверховість: 9/9

S загаль/житл/кух: 56/26/6

Розташування: Харьков, Салтовка, Шевченковский пер., Академика Павлова метро

Опис:

Продам 2к квартиру, общей площадью 56м2, 9/9. Состояние после застройщика, как на фото. Хороший прямой вид из окна на природу, особенно летом. Западная сторона. Перспективный район (реконструкция Барабашово и речного канала). Метро в 10-минутной пешей доступности. Так как последний этаж, можно законно увеличить кухню за счет уменьшения и объединения туалетно-ванной комнаты. Есть возможность выкупа тех-этажа над квартирой и создания 2х-этажного пентхауса.

Заявка на перегляд Замовити дзвінок Запропонувати свою ціну Поскаржитися

Контактні дані

0

(099) ххх-хх-хх

Показати

Подібні пропозиції:

32 000 $

31.01.25

481

Кількість кімнат: 2

Поверх/поверховість: 5/9

S загаль/житл/кух: 56/-/-

Розташування: Харьков, Салтовка, Шевченковский пер., Академика Павлова метро

Детальніше...

34 000 $

21.02.23

515

Кількість кімнат: 2

Поверх/поверховість: 5/9

S загаль/житл/кух: 56/-/-

Розташування: Харьков, Салтовка, Шевченковский пер., Академика Павлова метро

Детальніше...

33 000 $

24.04.23

475

Кількість кімнат: 2

Поверх/поверховість: 9/9

S загаль/житл/кух: 35/-/-

Розташування: Харьков, Салтовка, Шевченковский пер., Академика Павлова метро

Детальніше...

35 000 $

19.06.23

436

Кількість кімнат: 2

Поверх/поверховість: 8/9

S загаль/житл/кух: 56/-/-

Розташування: Харьков, Салтовка, Шевченковский пер., Академика Павлова метро

Детальніше...

35 000 $

13.01.24

509

Кількість кімнат: 2

Поверх/поверховість: 3/9

S загаль/житл/кух: 54/-/-

Розташування: Харьков, Салтовка, Шевченковский пер., Академика Павлова метро

Детальніше...

37 000 $

13.09.23

384

Кількість кімнат: 2

Поверх/поверховість: 5/9

S загаль/житл/кух: 52/-/-

Розташування: Харьков, Салтовка, Барабашова ул., Академика Павлова метро

Детальніше...

34 000 $

25.09.23

472

Кількість кімнат: 2

Поверх/поверховість: 6/9

S загаль/житл/кух: 35/-/-

Розташування: Харьков, Салтовка, Барабашова ул., Академика Павлова метро

Детальніше...

32 000 $

07.10.23

366

Кількість кімнат: 2

Поверх/поверховість: /9

S загаль/житл/кух: 56/-/-

Розташування: Харьков, Салтовка, Шевченковский пер., Академика Павлова метро

Детальніше...

34 000 $

15.02.24

348

Кількість кімнат: 2

Поверх/поверховість: 2/9

S загаль/житл/кух: 54/-/-

Розташування: Харьков, Салтовка, Барабашова ул., Академика Павлова метро

Детальніше...

36 000 $

19.02.24

345

Кількість кімнат: 2

Поверх/поверховість: 3/9

S загаль/житл/кух: 33/-/-

Розташування: Харьков, Салтовка, Казакевича, Академика Павлова метро

Детальніше...

35 000 $

05.03.24

330

Кількість кімнат: 2

Поверх/поверховість: 8/9

S загаль/житл/кух: 44/-/-

Розташування: Харьков, Салтовка, Академика Павлова метро

Детальніше...

33 500 $

03.04.24

307

Кількість кімнат: 2

Поверх/поверховість: 7/9

S загаль/житл/кух: 35/11/-

Розташування: Харьков, Салтовка, Академика Павлова метро

Детальніше...