Відгуки про АН Город:

Відгуки про АН Город Дивитися всі Додати відгук

Відео відгуки про нас:

Відео відгуки про нас Дивитися всі
Заявка на продаж або оренду нерухомості Написати листа Замовити дзвінок

Продам 2-х кімнатну квартиру в новобудові, Павлово поле, Сокольники, Код: 796393/1

Розташування: Харьков, Павлово поле, Профессорская, Сокольники Дивитися на мапі

437

23.01.23

Заявка на перегляд Замовити дзвінок Запропонувати свою ціну Поскаржитися

Контактні дані

0

(099) ххх-хх-хх

Показати

Номер об'єкта: 796393/1

65 000 $

ГРН USD

Ціна 942 $ / м2

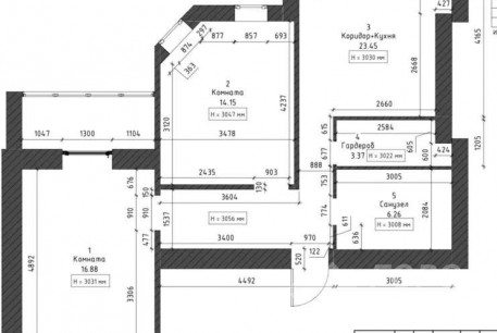
Кількість кімнат: 2

Поверх/поверховість: 4/16

S загаль/житл/кух: 69/-/15

Розташування: Харьков, Павлово поле, Профессорская, Сокольники

Опис:

Квартира 69 кв.м в новом заселённом комплексе ЖК Сокольники! Рядом парк Горького! Супер район! Оборудован двор, детская площадка. Сделана перепланировка, заменены радиаторы, установлен тёплый пол в коридоре и кухне, заменена входная дверь, выделено помещение под гардеробную, установлен счётчик тепла. Есть возможность приобрести кладовку на этаже.

Заявка на перегляд Замовити дзвінок Запропонувати свою ціну Поскаржитися

Контактні дані

0

(099) ххх-хх-хх

Показати

Подібні пропозиції:

67 895 $

09.06.23

357

Кількість кімнат: 2

Поверх/поверховість: 8/12

S загаль/житл/кух: 60/-/-

Розташування: Харьков, Павлово поле, Сокольниковская

Детальніше...

63 200 $

06.02.24

343

Кількість кімнат: 2

Поверх/поверховість: 3/13

S загаль/житл/кух: 70/-/-

Розташування: Харьков, Павлово поле, Авиационная, 23 Августа метро

Детальніше...

62 000 $

15.01.24

287

Кількість кімнат: 2

Поверх/поверховість: 16/16

S загаль/житл/кух: 62/-/-

Розташування: Харьков, Павлово поле, Профессорская, Сокольники

Детальніше...

67 000 $

27.02.24

268

Кількість кімнат: 2

Поверх/поверховість: 7/12

S загаль/житл/кух: 60/-/-

Розташування: Харьков, Павлово поле, Сокольниковская, Сокольники

Детальніше...

64 000 $

12.03.25

199

Кількість кімнат: 2

Поверх/поверховість: 2/6

S загаль/житл/кух: 60/-/-

Розташування: Харьков, Павлово поле, Профессорская, Сокольники

Детальніше...

65 000 $

22.11.25

39

Кількість кімнат: 2

Поверх/поверховість: 8/13

S загаль/житл/кух: 75/-/-

Розташування: Харьков, Павлово поле, Авиационная

Детальніше...