Відгуки про АН Город:

Відгуки про АН Город Дивитися всі Додати відгук

Відео відгуки про нас:

Відео відгуки про нас Дивитися всі
Заявка на продаж або оренду нерухомості Написати листа Замовити дзвінок

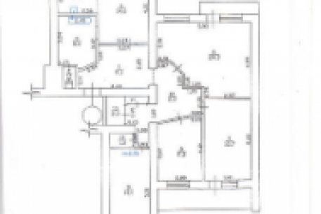
Продам 4-х кімнатну квартиру, Гагарина проспект, Проспект Гагарина метро, Код: 773996/1

Розташування: Харьков, Гагарина проспект, Вернадского ул., Проспект Гагарина метро Дивитися на мапі

659

30.01.23

Заявка на перегляд Замовити дзвінок Запропонувати свою ціну Поскаржитися

Контактні дані

0

(099) ххх-хх-хх

Показати

Номер об'єкта: 773996/1

95 000 $

ГРН USD

Ціна 679 $ / м2

Кількість кімнат: 4

Поверх/поверховість: 3/14

S загаль/житл/кух: 140/-/30

Розташування: Харьков, Гагарина проспект, Вернадского ул., Проспект Гагарина метро

Опис:

Продам 4-х комнатную квартиру по ул.Вернадского. Площадь 140 м. кв. Комфортное расположение дома (метро, ​​ж/д вокзал, авто вокзал, вся городская и бытовая инфраструктура в непосредственной близости). Удобная планировка, наличие свободного пространства, 1 лоджия, 1 балкон, одни культурные соседи по этажу, в доме лифт пассажирский и грузовой. Во дворе детская площадка, уличный паркинг (подземный от соседского дома), отделение полиции и филиала коммунальных служб района. Огромный ТРЦ Класс. Квартира в процессе ремонта.

Заявка на перегляд Замовити дзвінок Запропонувати свою ціну Поскаржитися

Контактні дані

0

(099) ххх-хх-хх

Показати

Подібні пропозиції:

92 000 $

06.04.23

362

Кількість кімнат: 4

Поверх/поверховість: 2/5

S загаль/житл/кух: 85/-/-

Розташування: Харьков, Сосновая Горка, Данилевского ул., Научная метро

Детальніше...

95 000 $

31.07.23

338

Кількість кімнат: 4

Поверх/поверховість: 2/5

S загаль/житл/кух: 97/-/-

Розташування: Харьков, Центр, Сумская ул.

Детальніше...

95 000 $

15.08.24

240

Кількість кімнат: 4

Поверх/поверховість: 8/9

S загаль/житл/кух: 100/60/20

Розташування: Харьков, Салтовка, Салтовское шоссе

Детальніше...

95 000 $

15.12.25

112

Кількість кімнат: 4

Поверх/поверховість: 6/7

S загаль/житл/кух:

Розташування: Харьков, Центр, Гиршмана

Детальніше...